- 東京の賃貸オフィス・貸事務所TOP
- 千代田区
- 内神田・小川町・淡路町エリア
- いちご神田小川町ビル(イチゴカンダオガワマチビル)
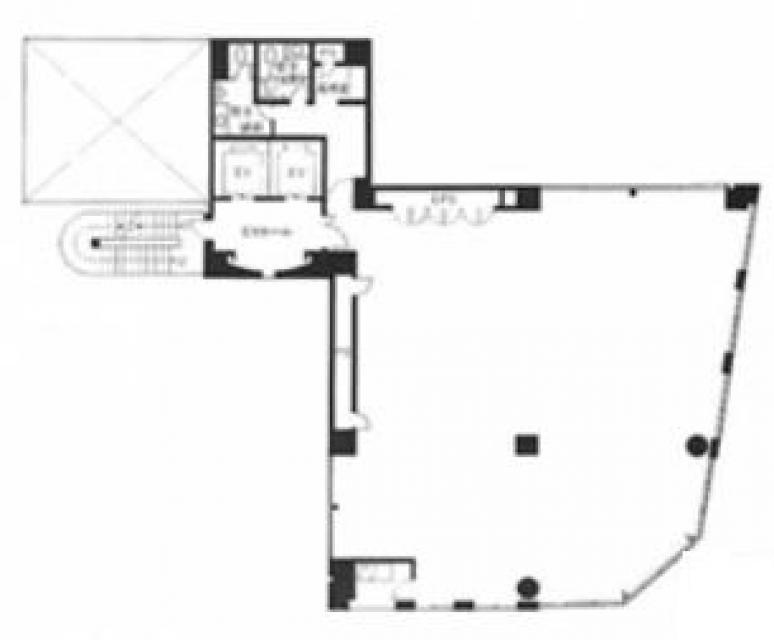
いちご神田小川町ビル 9階 70.14坪 賃貸オフィス詳細
- 物件ID
- 50399
- いちご神田小川町ビル(イチゴカンダオガワマチビル) 9階 70.14坪
-
”いちご神田小川町ビル(イチゴカンダオガワマチビル)”は、 淡路町駅から徒歩5分、神保町駅から徒歩8分、御茶ノ水駅から徒歩8分、竹橋駅から徒歩10分、神田駅から徒歩10分 の賃貸オフィスです。
1993年9月に竣工。構造は鉄骨造(S造)。耐震構造は新耐震。
利用可能路線は総武本線、中央線(快速)、山手線、都営大江戸線、東海道本線、銀座線、丸ノ内線、東西線、半蔵門線で、 用途は賃貸オフィスとなっています。最寄り駅は淡路町駅と神保町駅と御茶ノ水駅と竹橋駅と神田駅。 住所は千代田区神田小川町2-4-16です。
ぜひ一度、内覧にお越しくださいませ。
フロア概要
| 階数 | 9階 | 面積 | 70.14坪(231.87m²) |
|---|---|---|---|
| 賃料/坪 | 相談 | 共益費/坪 | 賃料に含む |
| 月額賃料 (共益費込) |
相談 | 入居日 | 即 |
| 敷金 (保証金) |
8ヶ月 | 礼金 | 無し |
| 償却費 | 無し | 更新料 | 無し |
| 契約 | 定期借家(2年) | ||
ビル概要
| 物件名 | いちご神田小川町ビル(イチゴカンダオガワマチビル) | ||
|---|---|---|---|
| 所在地 | 千代田区神田小川町2-4-16 | ||
| 利用可能駅 | |||
| 利用可能 路線 |
|||
| 竣工 | 1993年9月 | リニューアル | - |
| 構造 | 鉄骨造(S造) | 規模 | B1階/10階 |
| 耐震構造 | 新耐震 | ||
個別空調
新耐震
光ファイバー利用可
24時間利用可
OAフロア有り
駐車場有り
アクセス
このビルの募集中フロア一覧
| 所在階 | 面積 | 入居予定 | 賃料 | 共益費 | 賃料総額 |
|---|---|---|---|---|---|
| 2階 | 66坪 | - | - | - | - |
| 3階 | 70.95坪 | - | - | - | - |
| 4階 | 70.95坪 | - | - | - | - |
| 5階 | 70.95坪 | - | - | - | - |
| 6階 | 70.95坪 | - | - | - | - |
| 7階 | 70.95坪 | - | - | - | - |
| 8階 | 65.95坪 | - | - | - | - |
| 9階 | 70.14坪 | 即 | 相談 | 賃料に含む | - |
| 10階 | 49.75坪 | - | - | - | - |

