- 東京の賃貸オフィス・貸事務所TOP
- 中央区
- 茅場町・八丁堀・新川・兜町周辺エリア
- 塩部ビルディング(シオベビルディング)
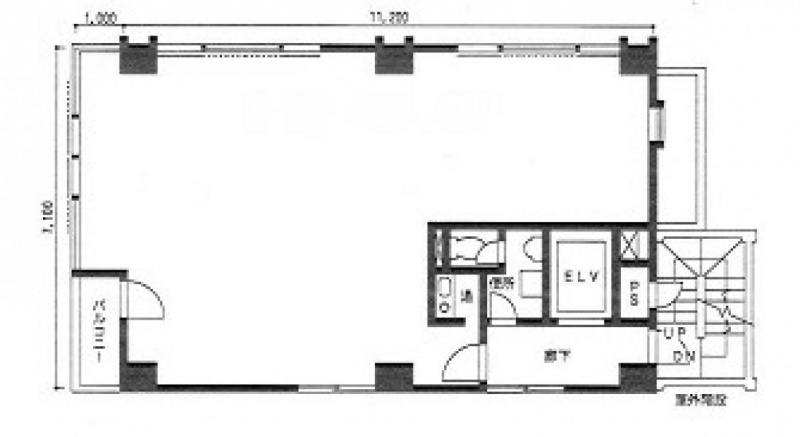
塩部ビルディング 2階 24.06坪 賃貸オフィス詳細
- 物件ID
- 46744
- 塩部ビルディング(シオベビルディング) 2階 24.06坪
-
”塩部ビルディング(シオベビルディング)”は、 八丁堀駅から徒歩1分、京橋駅から徒歩7分、茅場町駅から徒歩8分、新富町駅から徒歩8分 の賃貸オフィスです。
1981年4月に竣工。構造は鉄骨鉄筋コンクリート(SRC造)。耐震構造は旧耐震。
利用可能路線は京葉線、都営浅草線、日比谷線、有楽町線で、 用途は賃貸オフィスとなっています。最寄り駅は八丁堀駅と京橋駅と茅場町駅と新富町駅。 住所は中央区八丁堀4-9-6です。
ぜひ一度、内覧にお越しくださいませ。
フロア概要
| 階数 | 2階 | 面積 | 24.06坪(79.54m²) |
|---|---|---|---|
| 賃料/坪 | 12,500円/坪 | 共益費/坪 | 2,500円/坪 |
| 月額賃料 (共益費込) |
360,900円 | 入居日 | 即 |
| 敷金 (保証金) |
6ヶ月 | 礼金 | 1ヶ月 |
| 償却費 | 2ヶ月 | 更新料 | 無し |
| 契約 | 定期借家(2年) | ||
| 備考 | エントランス鍵:5,000円/本(税別) インターネット光プラン:2,950円(税別) |
||
ビル概要
| 物件名 | 塩部ビルディング(シオベビルディング) | ||
|---|---|---|---|
| 所在地 | 中央区八丁堀4-9-6 | ||
| 利用可能駅 | |||
| 利用可能 路線 |
|||
| 竣工 | 1981年4月 | リニューアル | - |
| 構造 | 鉄骨鉄筋コンクリート(SRC造) | 規模 | 1階/9階 |
| 耐震構造 | 旧耐震 | ||
個別空調
旧耐震
光ファイバー利用可
24時間利用可
要確認
要確認
アクセス
このビルの募集中フロア一覧
| 所在階 | 面積 | 入居予定 | 賃料 | 共益費 | 賃料総額 |
|---|---|---|---|---|---|
| 2階 | 24.06坪 | 即 | 12,500円/坪 | 2,500円/坪 | 300,750円/月 |
| 4階 | 26.6坪 | - | - | - | - |
| 5階 | 26.6坪 | - | - | - | - |
| 6階 | 26.61坪 | 即 | 12,500円/坪 | 2,500円/坪 | 332,625円/月 |
| 7階 | 11.64坪 | - | - | - | - |
| 7階 | 15坪 | - | - | - | - |
| 8階 | 14.96坪 | - | - | - | - |

