- 東京の賃貸オフィス・貸事務所TOP
- 品川区
- 五反田・大崎・西品川周辺エリア
- 第5TOCビル(ダイ5ティーオーシービル)
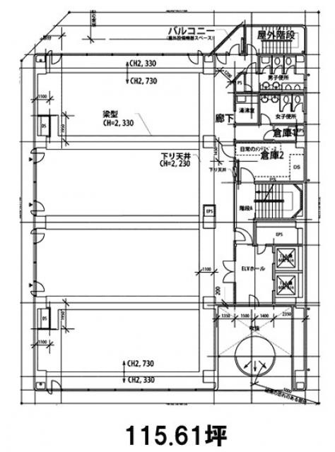
第5TOCビル 2階 115.61坪 賃貸オフィス詳細
一棟貸し可能- 物件ID
- 46099
- 第5TOCビル(ダイ5ティーオーシービル) 2階 115.61坪
-
”第5TOCビル(ダイ5ティーオーシービル)”は、 大崎広小路駅から徒歩5分、不動前駅から徒歩6分、五反田駅から徒歩8分 の賃貸オフィスです。
1987年8月に竣工。構造は鉄骨鉄筋コンクリート(SRC造)。耐震構造は新耐震。
利用可能路線は東急池上線、東急目黒線、山手線で、 用途は賃貸オフィスとなっています。最寄り駅は大崎広小路駅と不動前駅と五反田駅。 住所は品川区西五反田7-21-1です。
ぜひ一度、内覧にお越しくださいませ。
フロア概要
| 階数 | 2階 | 面積 | 115.61坪(382.18m²) |
|---|---|---|---|
| 賃料/坪 | 相談 | 共益費/坪 | 相談 |
| 月額賃料 (共益費込) |
相談 | 入居日 | 即 |
| 敷金 (保証金) |
相談 | 礼金 | 無し |
| 償却費 | 無し | 更新料 | 無し |
| 契約 | 定期借家 | ||
ビル概要
| 物件名 | 第5TOCビル(ダイ5ティーオーシービル) | ||
|---|---|---|---|
| 所在地 | 品川区西五反田7-21-1 | ||
| 利用可能駅 | |||
| 利用可能 路線 |
|||
| 竣工 | 1987年8月 | リニューアル | - |
| 構造 | 鉄骨鉄筋コンクリート(SRC造) | 規模 | 1階/9階 |
| 耐震構造 | 新耐震 | ||
個別空調
新耐震
光ファイバー利用可
24時間利用可
OAフロア有り
駐車場無し
アクセス
このビルの募集中フロア一覧
| 所在階 | 面積 | 入居予定 | 賃料 | 共益費 | 賃料総額 |
|---|---|---|---|---|---|
| 1階 | 94.46坪 | - | - | - | - |
| 2階 | 115.61坪 | 即 | 相談 | 相談 | - |
| 3階 | 129.02坪 | - | - | - | - |
| 4階 | 129.02坪 | - | - | - | - |
| 5階 | 129.02坪 | - | - | - | - |
| 6階 | 129.02坪 | - | - | - | - |
| 7階 | 129.02坪 | - | - | - | - |
| 9階 | 116.19坪 | - | - | - | - |

