- 東京の賃貸オフィス・貸事務所TOP
- 渋谷区
- 渋谷・原宿・神宮前・東エリア
- 渋谷第一生命ビル(シブヤダイイチセイメイビル)
渋谷第一生命ビル 3階 24.36坪 賃貸オフィス詳細
- 物件ID
- 4484
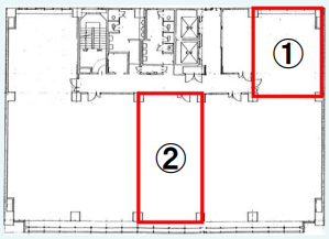
- 渋谷第一生命ビル(シブヤダイイチセイメイビル) 3階 24.36坪
-
”渋谷第一生命ビル(シブヤダイイチセイメイビル)”は、 渋谷駅から徒歩4分 の賃貸オフィスです。
1979年2月に竣工。構造は鉄骨鉄筋コンクリート(SRC造)。耐震構造は旧耐震。
利用可能路線は山手線で、 用途は賃貸オフィスとなっています。最寄り駅は渋谷駅。 住所は渋谷区渋谷3-8-12です。
ぜひ一度、内覧にお越しくださいませ。
フロア概要
| 階数 | 3階 | 面積 | 24.36坪(80.53m²) |
|---|---|---|---|
| 賃料/坪 | - | 共益費/坪 | - |
| 月額賃料 (共益費込) |
- | 入居日 | - |
| 敷金 (保証金) |
- | 礼金 | - |
| 償却費 | - | 更新料 | - |
| 契約 | - | ||
ビル概要
| 物件名 | 渋谷第一生命ビル(シブヤダイイチセイメイビル) | ||
|---|---|---|---|
| 所在地 | 渋谷区渋谷3-8-12 | ||
| 利用可能駅 |
|
||
| 利用可能 路線 |
|||
| 竣工 | 1979年2月 | リニューアル | - |
| 構造 | 鉄骨鉄筋コンクリート(SRC造) | 規模 | B1階/10階 |
| 耐震構造 | 旧耐震 | ||
空調併用
旧耐震
光ファイバー利用可
24時間利用可
OAフロア無し
駐車場有り
アクセス
このビルの募集中フロア一覧
| 所在階 | 面積 | 入居予定 | 賃料 | 共益費 | 賃料総額 |
|---|---|---|---|---|---|
| 2階 | 67.01坪 | - | - | - | - |
| 2階 | 91.56坪 | - | - | - | - |
| 3階 | 16.86坪 | 2025年12月1日 | 相談 | 賃料に含む | - |
| 3階 | 69.28坪 | - | - | - | - |
| 3階 | 24.36坪 | - | - | - | - |
| 3階 | 51.49坪 | - | - | - | - |
| 4階 | 24.36坪 | - | - | - | - |
| 4階 | 93.63坪 | - | - | - | - |
| 5階 | 68.34坪 | - | - | - | - |
| 5階 | 17.79坪 | - | - | - | - |
| 6階 | 69.28坪 | 2025年12月1日 | 相談 | 賃料に含む | - |
| 7階 | 161.98坪 | - | - | - | - |
もっと検索する
- 駅から検索
- エリアから検索

