- 東京の賃貸オフィス・貸事務所TOP
- 渋谷区
- 道玄坂・宇田川町・桜丘・南平台・神泉・神南エリア
- 道玄坂セピアビル(ドウゲンザカセピアビル)
道玄坂セピアビル 8階 43坪 賃貸オフィス詳細
- 物件ID
- 44253
- 道玄坂セピアビル(ドウゲンザカセピアビル) 8階 43坪
-
”道玄坂セピアビル(ドウゲンザカセピアビル)”は、 神泉駅から徒歩3分、渋谷駅から徒歩7分 の賃貸オフィスです。
1985年12月に竣工。構造は鉄骨一部鉄筋コンクリート(S・RC造)。耐震構造は新耐震。
利用可能路線は京王井の頭線、山手線、小田急小田原線、東急東横線、千代田線で、 用途は賃貸オフィスとなっています。最寄り駅は神泉駅と渋谷駅。 住所は渋谷区道玄坂1-19-11です。
ぜひ一度、内覧にお越しくださいませ。
フロア概要
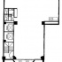
| 階数 | 8階 | 面積 | 43坪(142.15m²) |
|---|---|---|---|
| 賃料/坪 | 27,000円/坪 | 共益費/坪 | 4,000円/坪 |
| 月額賃料 (共益費込) |
1,333,000円 | 入居日 | 2026年2月上旬 |
| 敷金 (保証金) |
8ヶ月 | 礼金 | 無し |
| 償却費 | 無し | 更新料 | 無し |
| 契約 | 普通借家(2年) | ||
ビル概要
| 物件名 | 道玄坂セピアビル(ドウゲンザカセピアビル) | ||
|---|---|---|---|
| 所在地 | 渋谷区道玄坂1-19-11 | ||
| 利用可能駅 | |||
| 利用可能 路線 |
|||
| 竣工 | 1985年12月 | リニューアル | 2019年3月 |
| 構造 | 鉄骨一部鉄筋コンクリート(S・RC造) | 規模 | 1階/10階 |
| 耐震構造 | 新耐震 | ||
個別空調
新耐震
光ファイバー利用可
24時間利用可
OAフロア有り
駐車場無し
アクセス
このビルの募集中フロア一覧
| 所在階 | 面積 | 入居予定 | 賃料 | 共益費 | 賃料総額 |
|---|---|---|---|---|---|
| 3階 | 43坪 | - | - | - | - |
| 4階 | 43坪 | - | - | - | - |
| 5階 | 43坪 | - | - | - | - |
| 6階 | 43坪 | - | - | - | - |
| 7階 | 43坪 | - | - | - | - |
| 8階 | 43坪 | 2026年2月上旬 | 27,000円/坪 | 4,000円/坪 | 1,161,000円/月 |
| 9階 | 43坪 | - | - | - | - |

