- 東京の賃貸オフィス・貸事務所TOP
- 中央区
- 人形町・水天宮・小伝馬町周辺エリア
- スクエア日本橋(スクエアニホンバシ)
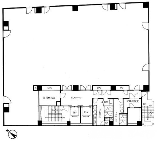
スクエア日本橋 7階 119.7坪 賃貸オフィス詳細
- 物件ID
- 42666
- スクエア日本橋(スクエアニホンバシ) 7階 119.7坪
-
”スクエア日本橋(スクエアニホンバシ)”は、 小伝馬町駅から徒歩1分、新日本橋駅から徒歩6分、馬喰町駅から徒歩7分、人形町駅から徒歩8分、岩本町駅から徒歩8分、神田駅から徒歩10分 の賃貸オフィスです。
1994年2月に竣工。構造は鉄骨鉄筋コンクリート(SRC造)。耐震構造は新耐震。
利用可能路線は銀座線、総武本線、日比谷線、都営新宿線で、 用途は賃貸オフィスとなっています。最寄り駅は小伝馬町駅と新日本橋駅と馬喰町駅と人形町駅と岩本町駅と神田駅。 住所は中央区日本橋小伝馬町1-7です。
ぜひ一度、内覧にお越しくださいませ。
フロア概要
| 階数 | 7階 | 面積 | 119.7坪(395.7m²) |
|---|---|---|---|
| 賃料/坪 | 相談 | 共益費/坪 | 賃料に含む |
| 月額賃料 (共益費込) |
相談 | 入居日 | 2026年2月1日 |
| 敷金 (保証金) |
12ヶ月 | 礼金 | 無し |
| 償却費 | 無し | 更新料 | 無し |
| 契約 | 普通借家(2年) | ||
ビル概要
| 物件名 | スクエア日本橋(スクエアニホンバシ) | ||
|---|---|---|---|
| 所在地 | 中央区日本橋小伝馬町1-7 | ||
| 利用可能駅 | |||
| 利用可能 路線 |
|||
| 竣工 | 1994年2月 | リニューアル | - |
| 構造 | 鉄骨鉄筋コンクリート(SRC造) | 規模 | B1階/8階 |
| 耐震構造 | 新耐震 | ||
個別空調
新耐震
光ファイバー利用可
24時間利用可
OAフロア有り
駐車場有り
アクセス
このビルの募集中フロア一覧
| 所在階 | 面積 | 入居予定 | 賃料 | 共益費 | 賃料総額 |
|---|---|---|---|---|---|
| 1階 | 47.39坪 | - | - | - | - |
| 2階 | 118.9坪 | - | - | - | - |
| 5階 | 119.7坪 | - | - | - | - |
| 6階 | 119.7坪 | - | - | - | - |
| 7階 | 119.7坪 | 2026年2月1日 | 相談 | 賃料に含む | - |
| 7階 | 53.84坪 | - | - | - | - |

