- 東京の賃貸オフィス・貸事務所TOP
- 千代田区
- 麹町・半蔵門・永田町エリア
- セブネスビル(セブネスビル)
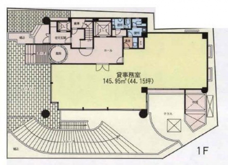
セブネスビル 1階 44.15坪 賃貸オフィス詳細
- 物件ID
- 42630
- セブネスビル(セブネスビル) 1階 44.15坪
-
”セブネスビル(セブネスビル)”は、 麹町駅から徒歩5分、四ツ谷駅から徒歩6分、市ヶ谷駅から徒歩7分、半蔵門駅から徒歩8分 の賃貸オフィスです。
1991年4月に竣工。構造は鉄骨鉄筋コンクリート(SRC造)。耐震構造は新耐震。
利用可能路線は中央線(快速)、有楽町線、半蔵門線で、 用途は賃貸オフィスとなっています。最寄り駅は麹町駅と四ツ谷駅と市ヶ谷駅と半蔵門駅。 住所は千代田区二番町12-13です。
ぜひ一度、内覧にお越しくださいませ。
フロア概要
| 階数 | 1階 | 面積 | 44.15坪(145.95m²) |
|---|---|---|---|
| 賃料/坪 | 20,000円/坪 | 共益費/坪 | 賃料に含む |
| 月額賃料 (共益費込) |
883,000円 | 入居日 | 2026年4月1日 |
| 敷金 (保証金) |
12ヶ月 | 礼金 | 無し |
| 償却費 | 無し | 更新料 | 無し |
| 契約 | 普通借家(2年) | ||
ビル概要
| 物件名 | セブネスビル(セブネスビル) | ||
|---|---|---|---|
| 所在地 | 千代田区二番町12-13 | ||
| 利用可能駅 | |||
| 利用可能 路線 |
|||
| 竣工 | 1991年4月 | リニューアル | - |
| 構造 | 鉄骨鉄筋コンクリート(SRC造) | 規模 | B1階/5階 |
| 耐震構造 | 新耐震 | ||
空調有り
新耐震
要確認
要確認
OAフロア有り
要確認
アクセス
このビルの募集中フロア一覧
| 所在階 | 面積 | 入居予定 | 賃料 | 共益費 | 賃料総額 |
|---|---|---|---|---|---|
| 1階 | 44.15坪 | 2026年4月1日 | 20,000円/坪 | 賃料に含む | 883,000円/月 |
| 2階 | 58.57坪 | - | - | - | - |
| 3階 | 58.57坪 | - | - | - | - |
| 4階 | 58.57坪 | - | - | - | - |

