- 東京の賃貸オフィス・貸事務所TOP
- 千代田区
- 九段下・神保町・竹橋エリア
- 九段下SSTビル(クダンシタエスエスティビル)
九段下SSTビル 6階 22.91坪 賃貸オフィス詳細
- 物件ID
- 42490
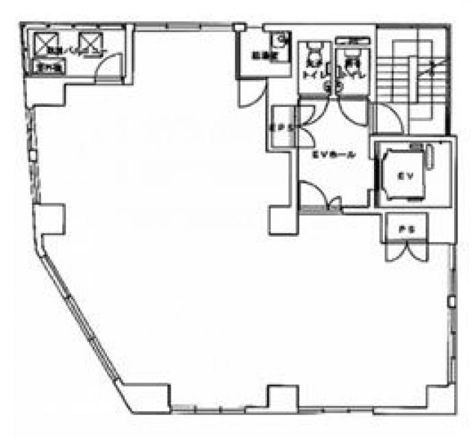
- 九段下SSTビル(クダンシタエスエスティビル) 6階 22.91坪
-
”九段下SSTビル(クダンシタエスエスティビル)”は、 九段下駅から徒歩2分、神保町駅から徒歩6分、竹橋駅から徒歩9分、水道橋駅から徒歩9分 の賃貸オフィスです。
2008年9月に竣工。構造は鉄筋コンクリート(RC造)。耐震構造は新耐震。
利用可能路線は半蔵門線、東西線、中央線(快速)で、 用途は賃貸オフィスとなっています。最寄り駅は九段下駅と神保町駅と竹橋駅と水道橋駅。 住所は千代田区神田神保町3-4-29です。
ぜひ一度、内覧にお越しくださいませ。
フロア概要
| 階数 | 6階 | 面積 | 22.91坪(75.74m²) |
|---|---|---|---|
| 賃料/坪 | 相談 | 共益費/坪 | 3,500円/坪 |
| 月額賃料 (共益費込) |
相談 | 入居日 | 2026年3月1日 |
| 敷金 (保証金) |
10ヶ月 | 礼金 | 無し |
| 償却費 | 無し | 更新料 | 無し |
| 契約 | 普通借家(2年) | ||
ビル概要
| 物件名 | 九段下SSTビル(クダンシタエスエスティビル) | ||
|---|---|---|---|
| 所在地 | 千代田区神田神保町3-4-29 | ||
| 利用可能駅 | |||
| 利用可能 路線 |
|||
| 竣工 | 2008年9月 | リニューアル | - |
| 構造 | 鉄筋コンクリート(RC造) | 規模 | 1階/8階 |
| 耐震構造 | 新耐震 | ||
個別空調
新耐震
光ファイバー利用可
要確認
OAフロア有り
駐車場有り
アクセス
このビルの募集中フロア一覧
| 所在階 | 面積 | 入居予定 | 賃料 | 共益費 | 賃料総額 |
|---|---|---|---|---|---|
| 2階 | 31.4坪 | - | - | - | - |
| 4階 | 12.92坪 | - | - | - | - |
| 6階 | 22.91坪 | 2026年3月1日 | 相談 | 3,500円/坪 | - |

