- 東京の賃貸オフィス・貸事務所TOP
- 渋谷区
- 恵比寿・代官山・広尾周辺エリア
- いちご恵比寿西ビル(イチゴエビスニシビル)
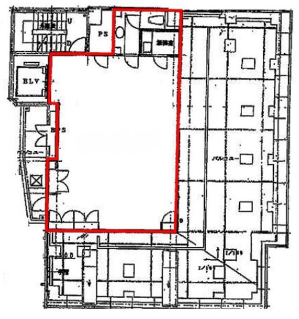
いちご恵比寿西ビル 9階 23.61坪 賃貸オフィス詳細
- 物件ID
- 42466
- いちご恵比寿西ビル(イチゴエビスニシビル) 9階 23.61坪
-
”いちご恵比寿西ビル(イチゴエビスニシビル)”は、 代官山駅から徒歩6分、恵比寿駅から徒歩6分 の賃貸オフィスです。
1992年6月に竣工。構造は鉄骨鉄筋コンクリート(SRC造)。耐震構造は新耐震。
利用可能路線は東急東横線、山手線で、 用途は賃貸オフィスとなっています。最寄り駅は代官山駅と恵比寿駅。 住所は渋谷区恵比寿西2-7-3です。
ぜひ一度、内覧にお越しくださいませ。
フロア概要
| 階数 | 9階 | 面積 | 23.61坪(78.05m²) |
|---|---|---|---|
| 賃料/坪 | 相談 | 共益費/坪 | 賃料に含む |
| 月額賃料 (共益費込) |
相談 | 入居日 | 即 |
| 敷金 (保証金) |
相談 | 礼金 | 無し |
| 償却費 | 無し | 更新料 | 無し |
| 契約 | 普通借家(2年) | ||
ビル概要
| 物件名 | いちご恵比寿西ビル(イチゴエビスニシビル) | ||
|---|---|---|---|
| 所在地 | 渋谷区恵比寿西2-7-3 | ||
| 利用可能駅 | |||
| 利用可能 路線 |
|||
| 竣工 | 1992年6月 | リニューアル | - |
| 構造 | 鉄骨鉄筋コンクリート(SRC造) | 規模 | 1階/9階 |
| 耐震構造 | 新耐震 | ||
個別空調
新耐震
光ファイバー利用可
24時間利用可
OAフロア有り
駐車場有り
アクセス
このビルの募集中フロア一覧
| 所在階 | 面積 | 入居予定 | 賃料 | 共益費 | 賃料総額 |
|---|---|---|---|---|---|
| 2階 | 46.02坪 | - | - | - | - |
| 3階 | 63.4坪 | - | - | - | - |
| 4階 | 63.26坪 | - | - | - | - |
| 5階 | 63.26坪 | - | - | - | - |
| 6階 | 63.26坪 | - | - | - | - |
| 7階 | 63.11坪 | - | - | - | - |
| 8階 | 63.11坪 | - | - | - | - |
| 9階 | 23.61坪 | 即 | 相談 | 賃料に含む | - |
もっと検索する
- 駅から検索
- エリアから検索

