- 東京の賃貸オフィス・貸事務所TOP
- 世田谷区
- 世田谷区エリア
- NOVEL WORK Sangenjaya(ノーベルワークサンゲンジャヤ)
NOVEL WORK Sangenjaya 5階 23.81坪 賃貸オフィス詳細
- 物件ID
- 41849
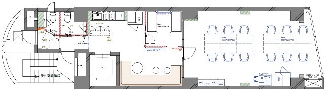
- NOVEL WORK Sangenjaya(ノーベルワークサンゲンジャヤ) 5階 23.81坪
-
”NOVEL WORK Sangenjaya(ノーベルワークサンゲンジャヤ)”は、 池尻大橋駅から徒歩10分、三軒茶屋駅から徒歩10分 の賃貸オフィスです。
1992年4月1日に竣工。構造は鉄筋コンクリート(RC造)。耐震構造は新耐震。
利用可能路線は東急田園都市線で、 用途は賃貸オフィスとなっています。最寄り駅は池尻大橋駅と三軒茶屋駅。 住所は世田谷区太子堂1-4-33です。
ぜひ一度、内覧にお越しくださいませ。
フロア概要
| 階数 | 5階 | 面積 | 23.81坪(78.72m²) |
|---|---|---|---|
| 賃料/坪 | 28,000円/坪 | 共益費/坪 | 賃料に含む |
| 月額賃料 (共益費込) |
666,680円 | 入居日 | 即 |
| 敷金 (保証金) |
無し | 礼金 | 無し |
| 償却費 | 無し | 更新料 | 無し |
| 契約 | 普通借家(2年) | ||
ビル概要
| 物件名 | NOVEL WORK Sangenjaya(ノーベルワークサンゲンジャヤ) | ||
|---|---|---|---|
| 所在地 | 世田谷区太子堂1-4-33 | ||
| 利用可能駅 | |||
| 利用可能 路線 |
|||
| 竣工 | 1992年4月1日 | リニューアル | 2025年4月 |
| 構造 | 鉄筋コンクリート(RC造) | 規模 | 1階/8階 |
| 耐震構造 | 新耐震 | ||
空調有り
新耐震
光ファイバー利用可
24時間利用可
OAフロア有り
要確認
アクセス
このビルの募集中フロア一覧
| 所在階 | 面積 | 入居予定 | 賃料 | 共益費 | 賃料総額 |
|---|---|---|---|---|---|
| 1階 | 16.71坪 | - | - | - | - |
| 2階 | 24.39坪 | - | - | - | - |
| 3階 | 23.81坪 | - | - | - | - |
| 4階 | 23.81坪 | 即 | 28,000円/坪 | 賃料に含む | 666,680円/月 |
| 5階 | 23.81坪 | 即 | 28,000円/坪 | 賃料に含む | 666,680円/月 |
| 6階 | 23.81坪 | 即 | 28,000円/坪 | 賃料に含む | 666,680円/月 |
| 7階 | 23.81坪 | 即 | 28,000円/坪 | 賃料に含む | 666,680円/月 |
| 8階 | 23.81坪 | 即 | 28,000円/坪 | 賃料に含む | 666,680円/月 |
もっと検索する
- 駅から検索
- エリアから検索

