- 東京の賃貸オフィス・貸事務所TOP
- 港区
- 浜松町・田町・三田・高輪・白金エリア
- NBC三田ビル(エヌビーシーミタビル)
NBC三田ビル 4階 22.96坪 賃貸オフィス詳細
- 物件ID
- 39768
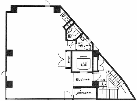
- NBC三田ビル(エヌビーシーミタビル) 4階 22.96坪
-
”NBC三田ビル(エヌビーシーミタビル)”は、 田町駅から徒歩4分、三田駅から徒歩6分 の賃貸オフィスです。
2007年1月に竣工。構造は鉄骨造(S造)。耐震構造は新耐震。
利用可能路線は山手線、都営浅草線で、 用途は賃貸オフィスとなっています。最寄り駅は田町駅と三田駅。 住所は港区芝5-29-18です。
ぜひ一度、内覧にお越しくださいませ。
フロア概要
| 階数 | 4階 | 面積 | 22.96坪(75.9m²) |
|---|---|---|---|
| 賃料/坪 | 18,000円/坪 | 共益費/坪 | 3,000円/坪 |
| 月額賃料 (共益費込) |
482,160円 | 入居日 | 即 |
| 敷金 (保証金) |
10ヶ月 | 礼金 | 無し |
| 償却費 | 2ヶ月 | 更新料 | 無し |
| 契約 | 普通借家(2年) | ||
ビル概要
| 物件名 | NBC三田ビル(エヌビーシーミタビル) | ||
|---|---|---|---|
| 所在地 | 港区芝5-29-18 | ||
| 利用可能駅 | |||
| 利用可能 路線 |
|||
| 竣工 | 2007年1月 | リニューアル | - |
| 構造 | 鉄骨造(S造) | 規模 | 1階/10階 |
| 耐震構造 | 新耐震 | ||
個別空調
新耐震
光ファイバー利用可
24時間利用可
OAフロア有り
要確認
アクセス
このビルの募集中フロア一覧
| 所在階 | 面積 | 入居予定 | 賃料 | 共益費 | 賃料総額 |
|---|---|---|---|---|---|
| 2階 | 22.96坪 | 即 | 18,000円/坪 | 3,000円/坪 | 413,280円/月 |
| 3階 | 22.96坪 | 即 | 18,000円/坪 | 3,000円/坪 | 413,280円/月 |
| 4階 | 22.96坪 | 即 | 18,000円/坪 | 3,000円/坪 | 413,280円/月 |
| 5階 | 22.96坪 | - | - | - | - |
| 6階 | 22.96坪 | - | - | - | - |
| 7階 | 22.96坪 | - | - | - | - |
| 8階 | 22.96坪 | - | - | - | - |
| 9階 | 22.96坪 | - | - | - | - |
もっと検索する
- 駅から検索
- エリアから検索

