- 東京の賃貸オフィス・貸事務所TOP
- 千代田区
- 神田・秋葉原・岩本町エリア
- 第5東ビル(ダイ5アズマビル)
第5東ビル 5階 502 31坪 賃貸オフィス詳細
- 物件ID
- 38288
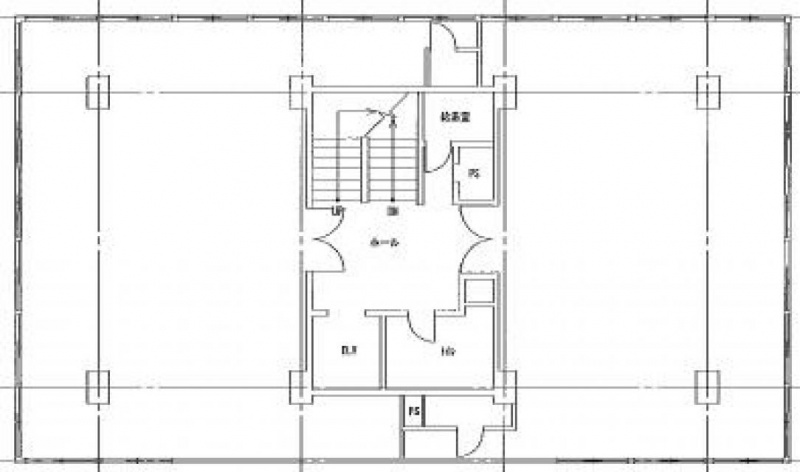
- 第5東ビル(ダイ5アズマビル) 5階 31坪
-
”第5東ビル(ダイ5アズマビル)”は、 岩本町駅から徒歩4分、秋葉原駅から徒歩5分、馬喰町駅から徒歩9分、浅草橋駅から徒歩9分、小伝馬町駅から徒歩10分、末広町駅から徒歩10分 の賃貸オフィスです。
1971年1月に竣工。構造は鉄骨鉄筋コンクリート(SRC造)。耐震構造は旧耐震。
利用可能路線は日比谷線、銀座線、総武本線、中央・総武線、山手線、都営新宿線で、 用途は賃貸オフィスとなっています。最寄り駅は岩本町駅と秋葉原駅と馬喰町駅と浅草橋駅と小伝馬町駅と末広町駅。 住所は千代田区神田佐久間町3-38です。
ぜひ一度、内覧にお越しくださいませ。
フロア概要
| 階数 | 5階 502 | 面積 | 31坪(102.48m²) |
|---|---|---|---|
| 賃料/坪 | 12,000円/坪 | 共益費/坪 | 3,000円/坪 |
| 月額賃料 (共益費込) |
465,000円 | 入居日 | 即 |
| 敷金 (保証金) |
8ヶ月 | 礼金 | 無し |
| 償却費 | 無し | 更新料 | 0ヶ月 |
| 契約 | 定期借家(3年) | ||
ビル概要
| 物件名 | 第5東ビル(ダイ5アズマビル) | ||
|---|---|---|---|
| 所在地 | 千代田区神田佐久間町3-38 | ||
| 利用可能駅 | |||
| 利用可能 路線 |
|||
| 竣工 | 1971年1月 | リニューアル | - |
| 構造 | 鉄骨鉄筋コンクリート(SRC造) | 規模 | B1階/9階 |
| 耐震構造 | 旧耐震 | ||
個別空調
旧耐震
光ファイバー利用可
24時間利用可
OAフロア有り
駐車場有り
アクセス
このビルの募集中フロア一覧
| 所在階 | 面積 | 入居予定 | 賃料 | 共益費 | 賃料総額 |
|---|---|---|---|---|---|
| B1階 | 17.5坪 | - | - | - | - |
| 1階 | 11坪 | - | - | - | - |
| 1階 | 22坪 | - | - | - | - |
| 2階 | 54坪 | 即 | 10,000円/坪 | 3,000円/坪 | 540,000円/月 |
| 4階 | 64坪 | - | - | - | - |
| 4階 | 31坪 | - | - | - | - |
| 5階 | 31坪 | 即 | 12,000円/坪 | 3,000円/坪 | 372,000円/月 |
| 7階 | 31坪 | - | - | - | - |
| 7階 | 31坪 | - | - | - | - |
| 8階 | 15坪 | - | - | - | - |
| 8階 | 33坪 | - | - | - | - |
| 9階 | 33坪 | - | - | - | - |

