- 東京の賃貸オフィス・貸事務所TOP
- 港区
- 虎ノ門・神谷町エリア
- ニッセイ虎ノ門ビル(ニッセイトラノモンビル)
ニッセイ虎ノ門ビル 13階 157.17坪 賃貸オフィス詳細
- 物件ID
- 37264
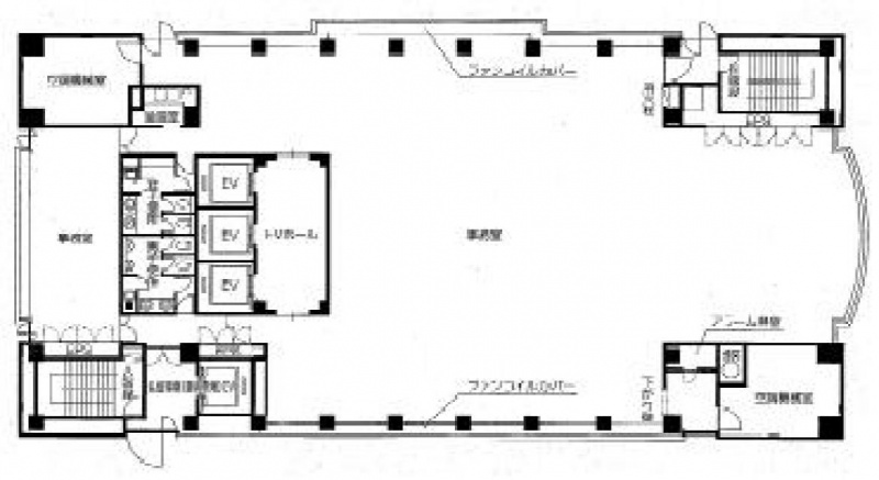
- ニッセイ虎ノ門ビル(ニッセイトラノモンビル) 13階 157.17坪
-
”ニッセイ虎ノ門ビル(ニッセイトラノモンビル)”は、 神谷町駅から徒歩3分、御成門駅から徒歩8分、虎ノ門駅から徒歩9分 の賃貸オフィスです。
1992年4月24日に竣工。構造は鉄骨鉄筋コンクリート(SRC造)。耐震構造は新耐震。
利用可能路線は銀座線、日比谷線、都営三田線で、 用途は賃貸オフィスとなっています。最寄り駅は神谷町駅と御成門駅と虎ノ門駅。 住所は港区虎ノ門3-12-1です。
ぜひ一度、内覧にお越しくださいませ。
フロア概要
| 階数 | 13階 | 面積 | 157.17坪(519.56m²) |
|---|---|---|---|
| 賃料/坪 | 相談 | 共益費/坪 | 相談 |
| 月額賃料 (共益費込) |
相談 | 入居日 | 2026年5月1日 |
| 敷金 (保証金) |
相談 | 礼金 | 無し |
| 償却費 | 無し | 更新料 | 無し |
| 契約 | 定期借家 | ||
ビル概要
| 物件名 | ニッセイ虎ノ門ビル(ニッセイトラノモンビル) | ||
|---|---|---|---|
| 所在地 | 港区虎ノ門3-12-1 | ||
| 利用可能駅 | |||
| 利用可能 路線 |
|||
| 竣工 | 1992年4月24日 | リニューアル | - |
| 構造 | 鉄骨鉄筋コンクリート(SRC造) | 規模 | B3階/16階 |
| 耐震構造 | 新耐震 | ||
個別空調
新耐震
光ファイバー利用可
要確認
OAフロア有り
駐車場有り
アクセス
このビルの募集中フロア一覧
| 所在階 | 面積 | 入居予定 | 賃料 | 共益費 | 賃料総額 |
|---|---|---|---|---|---|
| 10階 | 165.16坪 | - | - | - | - |
| 11階 | 165.16坪 | - | - | - | - |
| 12階 | 165.16坪 | - | - | - | - |
| 13階 | 157.17坪 | 2026年5月1日 | 相談 | 相談 | - |
もっと検索する
- 駅から検索
- エリアから検索

