- 東京の賃貸オフィス・貸事務所TOP
- 中央区
- 馬喰町・東日本橋・日本橋浜町・久松町周辺エリア
- 旭光ビル(キョッコウビル)
旭光ビル 9階 31.7坪 賃貸オフィス詳細
- 物件ID
- 36941
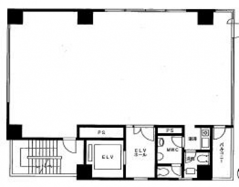
- 旭光ビル(キョッコウビル) 9階 31.7坪
-
”旭光ビル(キョッコウビル)”は、 浜町駅から徒歩4分、水天宮前駅から徒歩8分、森下駅から徒歩8分、人形町駅から徒歩10分 の賃貸オフィスです。
1991年10月に竣工。構造は鉄骨鉄筋コンクリート(SRC造)。耐震構造は新耐震。
利用可能路線は日比谷線、総武本線、中央・総武線、半蔵門線、都営大江戸線、都営新宿線で、 用途は賃貸オフィスとなっています。最寄り駅は浜町駅と水天宮前駅と森下駅と人形町駅。 住所は中央区日本橋浜町3-41-4です。
ぜひ一度、内覧にお越しくださいませ。
フロア概要
| 階数 | 9階 | 面積 | 31.7坪(104.79m²) |
|---|---|---|---|
| 賃料/坪 | 12,000円/坪 | 共益費/坪 | 3,000円/坪 |
| 月額賃料 (共益費込) |
475,500円 | 入居日 | 2026年3月16日 |
| 敷金 (保証金) |
6ヶ月 | 礼金 | 無し |
| 償却費 | 1ヶ月 | 更新料 | 1ヶ月 |
| 契約 | 普通借家(2年) | ||
ビル概要
| 物件名 | 旭光ビル(キョッコウビル) | ||
|---|---|---|---|
| 所在地 | 中央区日本橋浜町3-41-4 | ||
| 利用可能駅 | |||
| 利用可能 路線 |
|||
| 竣工 | 1991年10月 | リニューアル | - |
| 構造 | 鉄骨鉄筋コンクリート(SRC造) | 規模 | B1階/9階 |
| 耐震構造 | 新耐震 | ||
個別空調
新耐震
光ファイバー利用可
24時間利用可
OAフロア有り
駐車場無し
アクセス
このビルの募集中フロア一覧
| 所在階 | 面積 | 入居予定 | 賃料 | 共益費 | 賃料総額 |
|---|---|---|---|---|---|
| 2階 | 31.7坪 | - | - | - | - |
| 3階 | 31.7坪 | - | - | - | - |
| 6階 | 31.7坪 | - | - | - | - |
| 7階 | 31.7坪 | - | - | - | - |
| 8階 | 31.7坪 | - | - | - | - |
| 9階 | 31.7坪 | 2026年3月16日 | 12,000円/坪 | 3,000円/坪 | 380,400円/月 |

