- 東京の賃貸オフィス・貸事務所TOP
- 中央区
- 茅場町・八丁堀・新川・兜町周辺エリア
- NOVEL WORK 京橋(ノーベルワークキョウバシ)
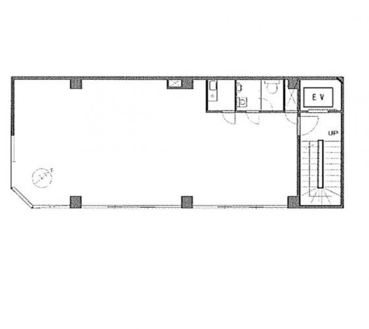
NOVEL WORK 京橋 1階 25.38坪 賃貸オフィス詳細
- 物件ID
- 36095
- NOVEL WORK 京橋(ノーベルワークキョウバシ) 1階 25.38坪
-
”NOVEL WORK 京橋(ノーベルワークキョウバシ)”は、 八丁堀駅から徒歩5分、京橋駅から徒歩6分、新富町駅から徒歩8分、日本橋駅から徒歩9分、茅場町駅から徒歩9分 の賃貸オフィスです。
1986年10月 下旬に竣工。構造は鉄筋コンクリート(RC造)。耐震構造は新耐震。
利用可能路線は京葉線、銀座線、日比谷線、有楽町線で、 用途は賃貸オフィスとなっています。最寄り駅は八丁堀駅と京橋駅と新富町駅と日本橋駅と茅場町駅。 住所は中央区八丁堀3-5-4です。
ぜひ一度、内覧にお越しくださいませ。
フロア概要
| 階数 | 1階 | 面積 | 25.38坪(83.91m²) |
|---|---|---|---|
| 賃料/坪 | 28,000円/坪 | 共益費/坪 | 賃料に含む |
| 月額賃料 (共益費込) |
710,640円 | 入居日 | 相談 |
| 敷金 (保証金) |
6ヶ月 | 礼金 | 無し |
| 償却費 | 無し | 更新料 | 無し |
| 契約 | 普通借家(2年) | ||
ビル概要
| 物件名 | NOVEL WORK 京橋(ノーベルワークキョウバシ) | ||
|---|---|---|---|
| 所在地 | 中央区八丁堀3-5-4 | ||
| 利用可能駅 | |||
| 利用可能 路線 |
|||
| 竣工 | 1986年10月 下旬 | リニューアル | - |
| 構造 | 鉄筋コンクリート(RC造) | 規模 | 1階/5階 |
| 耐震構造 | 新耐震 | ||
個別空調
新耐震
光ファイバー利用可
24時間利用可
OAフロア無し
駐車場無し
アクセス
このビルの募集中フロア一覧
| 所在階 | 面積 | 入居予定 | 賃料 | 共益費 | 賃料総額 |
|---|---|---|---|---|---|
| 1階 | 25.38坪 | 相談 | 28,000円/坪 | 賃料に含む | 710,640円/月 |
| 2階 | 29.64坪 | 相談 | 28,000円/坪 | 賃料に含む | 829,920円/月 |
| 3階 | 29.64坪 | - | - | - | - |
| 4階 | 20.65坪 | - | - | - | - |

