- 東京の賃貸オフィス・貸事務所TOP
- 渋谷区
- 道玄坂・宇田川町・桜丘・南平台・神泉・神南エリア
- ビジネスヴィップ渋谷道玄坂坂本ビル(ビジネスヴィップシブヤドウゲンザカサカモトビル)
ビジネスヴィップ渋谷道玄坂坂本ビル 7階 A 17.57坪 賃貸オフィス詳細
- 物件ID
- 35469
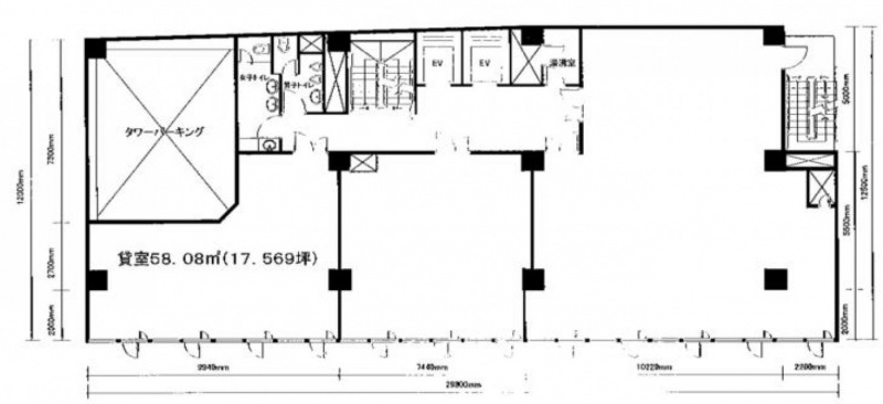
- ビジネスヴィップ渋谷道玄坂坂本ビル(ビジネスヴィップシブヤドウゲンザカサカモトビル) 7階 17.57坪
-
”ビジネスヴィップ渋谷道玄坂坂本ビル(ビジネスヴィップシブヤドウゲンザカサカモトビル)”は、 神泉駅から徒歩4分、渋谷駅から徒歩6分 の賃貸オフィスです。
1972年1月に竣工。構造は鉄骨造(S造)。耐震構造は旧耐震。
利用可能路線は山手線、京王井の頭線で、 用途は賃貸オフィスとなっています。最寄り駅は神泉駅と渋谷駅。 住所は渋谷区道玄坂2-16-8です。
ぜひ一度、内覧にお越しくださいませ。
フロア概要
| 階数 | 7階 A | 面積 | 17.57坪(58.08m²) |
|---|---|---|---|
| 賃料/坪 | 22,000円/坪 | 共益費/坪 | 2,800円/坪 |
| 月額賃料 (共益費込) |
400,596円 | 入居日 | 即 |
| 敷金 (保証金) |
6ヶ月 | 礼金 | 無し |
| 償却費 | 1ヶ月 | 更新料 | 無し |
| 契約 | 定期借家(5年) | ||
| 備考 | 窓ガラス清掃代:2,310円/月(税込) 電気水道料金別途 |
||
ビル概要
| 物件名 | ビジネスヴィップ渋谷道玄坂坂本ビル(ビジネスヴィップシブヤドウゲンザカサカモトビル) | ||
|---|---|---|---|
| 所在地 | 渋谷区道玄坂2-16-8 | ||
| 利用可能駅 | |||
| 利用可能 路線 |
|||
| 竣工 | 1972年1月 | リニューアル | - |
| 構造 | 鉄骨造(S造) | 規模 | B1階/11階 |
| 耐震構造 | 旧耐震 | ||
個別空調
旧耐震
光ファイバー利用可
24時間利用可
OAフロア有り
要確認
アクセス
このビルの募集中フロア一覧
| 所在階 | 面積 | 入居予定 | 賃料 | 共益費 | 賃料総額 |
|---|---|---|---|---|---|
| B1階 | 131.89坪 | - | - | - | - |
| 3階 | 28.57坪 | - | - | - | - |
| 3階 | 40.67坪 | - | - | - | - |
| 4階 | 73.91坪 | - | - | - | - |
| 5階 | 16.6坪 | - | - | - | - |
| 5階 | 12.1坪 | 即 | 22,000円/坪 | 2,800円/坪 | 266,200円/月 |
| 5階 | 27.64坪 | - | - | - | - |
| 6階 | 73.91坪 | - | - | - | - |
| 6階 | 56.34坪 | - | - | - | - |
| 7階 | 17.05坪 | - | - | - | - |
| 7階 | 17.57坪 | 即 | 22,000円/坪 | 2,800円/坪 | 351,400円/月 |
| 8階 | 56.34坪 | - | - | - | - |
| 11階 | 17.05坪 | - | - | - | - |

