- 東京の賃貸オフィス・貸事務所TOP
- 豊島区
- 池袋・目白・西池袋・池袋本町周辺エリア
- 西池袋TSビル(ニシイケブクロティーエスビル)
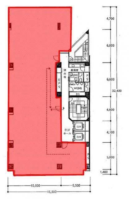
西池袋TSビル 2階 109.96坪 賃貸オフィス詳細
- 物件ID
- 35033
- 西池袋TSビル(ニシイケブクロティーエスビル) 2階 109.96坪
-
”西池袋TSビル(ニシイケブクロティーエスビル)”は、 池袋駅から徒歩6分 の賃貸オフィスです。
1990年12月に竣工。構造は鉄骨鉄筋コンクリート(SRC造)。耐震構造は新耐震。
利用可能路線は山手線で、 用途は賃貸オフィスとなっています。最寄り駅は池袋駅。 住所は豊島区西池袋3-1-15です。
ぜひ一度、内覧にお越しくださいませ。
フロア概要
| 階数 | 2階 | 面積 | 109.96坪(363.51m²) |
|---|---|---|---|
| 賃料/坪 | 相談 | 共益費/坪 | 4,231円/坪 |
| 月額賃料 (共益費込) |
相談 | 入居日 | 2026年5月1日 |
| 敷金 (保証金) |
12ヶ月 | 礼金 | 無し |
| 償却費 | 無し | 更新料 | 無し |
| 契約 | 普通借家(2年) | ||
ビル概要
| 物件名 | 西池袋TSビル(ニシイケブクロティーエスビル) | ||
|---|---|---|---|
| 所在地 | 豊島区西池袋3-1-15 | ||
| 利用可能駅 |
|
||
| 利用可能 路線 |
|||
| 竣工 | 1990年12月 | リニューアル | - |
| 構造 | 鉄骨鉄筋コンクリート(SRC造) | 規模 | B1階/10階 |
| 耐震構造 | 新耐震 | ||
個別空調
新耐震
光ファイバー利用可
24時間利用可
OAフロア有り
駐車場有り
アクセス
このビルの募集中フロア一覧
| 所在階 | 面積 | 入居予定 | 賃料 | 共益費 | 賃料総額 |
|---|---|---|---|---|---|
| 1階 | 60.13坪 | - | - | - | - |
| 2階 | 109.96坪 | 2026年5月1日 | 相談 | 4,231円/坪 | - |
| 4階 | 89.85坪 | - | - | - | - |
| 6階 | 60.99坪 | - | - | - | - |
| 8階 | 61.07坪 | - | - | - | - |

