- 東京の賃貸オフィス・貸事務所TOP
- 千代田区
- 麹町・半蔵門・永田町エリア
- 麹町秋山ビルディング(コウジマチアキヤマビルディング)
麹町秋山ビルディング 9階 22坪 賃貸オフィス詳細
- 物件ID
- 33146
- 麹町秋山ビルディング(コウジマチアキヤマビルディング) 9階 22坪
-
”麹町秋山ビルディング(コウジマチアキヤマビルディング)”は、 麹町駅から徒歩5分、四ツ谷駅から徒歩5分、半蔵門駅から徒歩10分、市ヶ谷駅から徒歩10分 の賃貸オフィスです。
1973年12月に竣工。構造は鉄骨鉄筋コンクリート(SRC造)。耐震構造は旧耐震。
利用可能路線は銀座線、中央線(快速)、千代田線、有楽町線、半蔵門線、都営新宿線で、 用途は賃貸オフィスとなっています。最寄り駅は麹町駅と四ツ谷駅と半蔵門駅と市ヶ谷駅。 住所は千代田区麹町5-3-4です。
ぜひ一度、内覧にお越しくださいませ。
フロア概要
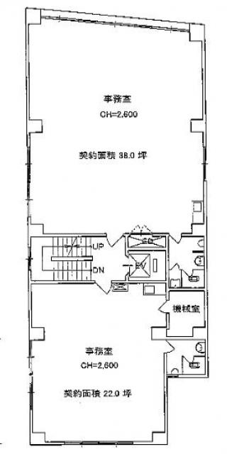
| 階数 | 9階 | 面積 | 22坪(72.73m²) |
|---|---|---|---|
| 賃料/坪 | 16,000円/坪 | 共益費/坪 | 無し |
| 月額賃料 (共益費込) |
352,000円 | 入居日 | 即 |
| 敷金 (保証金) |
10ヶ月 | 礼金 | 無し |
| 償却費 | 10% | 更新料 | 無し |
| 契約 | 定期借家(2年) | ||
ビル概要
| 物件名 | 麹町秋山ビルディング(コウジマチアキヤマビルディング) | ||
|---|---|---|---|
| 所在地 | 千代田区麹町5-3-4 | ||
| 利用可能駅 | |||
| 利用可能 路線 |
|||
| 竣工 | 1973年12月 | リニューアル | - |
| 構造 | 鉄骨鉄筋コンクリート(SRC造) | 規模 | 1階/9階 |
| 耐震構造 | 旧耐震 | ||
個別空調
旧耐震
光ファイバー利用可
24時間利用可
要確認
駐車場無し
アクセス
このビルの募集中フロア一覧
| 所在階 | 面積 | 入居予定 | 賃料 | 共益費 | 賃料総額 |
|---|---|---|---|---|---|
| 1階 | 12坪 | - | - | - | - |
| 3階 | 38坪 | - | - | - | - |
| 4階 | 38坪 | - | - | - | - |
| 5階 | 38坪 | - | - | - | - |
| 5階 | 22坪 | 即 | 16,000円/坪 | 無し | 352,000円/月 |
| 6階 | 22坪 | - | - | - | - |
| 6階 | 38坪 | - | - | - | - |
| 8階 | 38坪 | - | - | - | - |
| 8階 | 22坪 | - | - | - | - |
| 9階 | 22坪 | 即 | 16,000円/坪 | 無し | 352,000円/月 |

