- 東京の賃貸オフィス・貸事務所TOP
- 千代田区
- 内神田・小川町・淡路町エリア
- KT-Ⅱビル(ケイティー2)
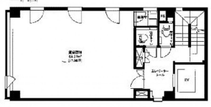
KT-Ⅱビル 4階 17.05坪 賃貸オフィス詳細
- 物件ID
- 32470
- KT-Ⅱビル(ケイティー2) 4階 17.05坪
-
”KT-Ⅱビル(ケイティー2)”は、 大手町駅から徒歩6分、神田駅から徒歩6分、淡路町駅から徒歩7分 の賃貸オフィスです。
2001年9月27日に竣工。構造は鉄筋コンクリート(RC造)。耐震構造は新耐震。
利用可能路線は丸ノ内線、山手線で、 用途は賃貸オフィスとなっています。最寄り駅は大手町駅と神田駅と淡路町駅。 住所は千代田区内神田1-3-9です。
ぜひ一度、内覧にお越しくださいませ。
フロア概要
| 階数 | 4階 | 面積 | 17.05坪(56.36m²) |
|---|---|---|---|
| 賃料/坪 | 12,000円/坪 | 共益費/坪 | 3,000円/坪 |
| 月額賃料 (共益費込) |
255,750円 | 入居日 | 2026年4月中旬 |
| 敷金 (保証金) |
8ヶ月 | 礼金 | 無し |
| 償却費 | 1ヶ月 | 更新料 | 無し |
| 契約 | 普通借家(2年) | ||
ビル概要
| 物件名 | KT-Ⅱビル(ケイティー2) | ||
|---|---|---|---|
| 所在地 | 千代田区内神田1-3-9 | ||
| 利用可能駅 | |||
| 利用可能 路線 |
|||
| 竣工 | 2001年9月27日 | リニューアル | - |
| 構造 | 鉄筋コンクリート(RC造) | 規模 | 1階/5階 |
| 耐震構造 | 新耐震 | ||
個別空調
新耐震
光ファイバー利用可
24時間利用可
要確認
駐車場無し
アクセス
このビルの募集中フロア一覧
| 所在階 | 面積 | 入居予定 | 賃料 | 共益費 | 賃料総額 |
|---|---|---|---|---|---|
| 1階 | 12.19坪 | 2026年4月中旬 | 13,000円/坪 | 3,000円/坪 | 158,470円/月 |
| 4階 | 17.05坪 | 2026年4月中旬 | 12,000円/坪 | 3,000円/坪 | 204,600円/月 |

