- 東京の賃貸オフィス・貸事務所TOP
- 文京区
- 本郷・湯島エリア
- 本郷ダイヤビル(ホンゴウダイヤビル)
本郷ダイヤビル 6階 120.08坪 賃貸オフィス詳細
- 物件ID
- 31764
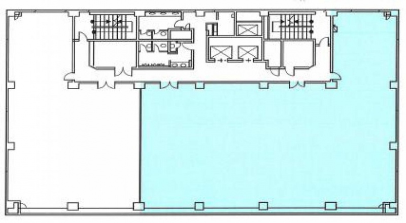
- 本郷ダイヤビル(ホンゴウダイヤビル) 6階 120.08坪
-
”本郷ダイヤビル(ホンゴウダイヤビル)”は、 本郷三丁目駅から徒歩4分、御茶ノ水駅から徒歩9分、水道橋駅から徒歩9分 の賃貸オフィスです。
1991年8月に竣工。構造は鉄骨鉄筋コンクリート(SRC造)。耐震構造は新耐震。
利用可能路線は中央線(快速)、都営三田線、丸ノ内線で、 用途は賃貸オフィスとなっています。最寄り駅は本郷三丁目駅と御茶ノ水駅と水道橋駅。 住所は文京区本郷3-18-4です。
ぜひ一度、内覧にお越しくださいませ。
フロア概要
| 階数 | 6階 | 面積 | 120.08坪(396.96m²) |
|---|---|---|---|
| 賃料/坪 | 相談 | 共益費/坪 | 相談 |
| 月額賃料 (共益費込) |
相談 | 入居日 | 2026年2月中旬 |
| 敷金 (保証金) |
相談 | 礼金 | 無し |
| 償却費 | 無し | 更新料 | 無し |
| 契約 | 普通借家(2年) | ||
ビル概要
| 物件名 | 本郷ダイヤビル(ホンゴウダイヤビル) | ||
|---|---|---|---|
| 所在地 | 文京区本郷3-18-4 | ||
| 利用可能駅 | |||
| 利用可能 路線 |
|||
| 竣工 | 1991年8月 | リニューアル | - |
| 構造 | 鉄骨鉄筋コンクリート(SRC造) | 規模 | B1階/8階 |
| 耐震構造 | 新耐震 | ||
空調併用
新耐震
光ファイバー利用可
要確認
OAフロア有り
駐車場有り
アクセス
このビルの募集中フロア一覧
| 所在階 | 面積 | 入居予定 | 賃料 | 共益費 | 賃料総額 |
|---|---|---|---|---|---|
| 6階 | 120.08坪 | 2026年2月中旬 | 相談 | 相談 | - |

