- 東京の賃貸オフィス・貸事務所TOP
- 中央区
- 茅場町・八丁堀・新川・兜町周辺エリア
- FORECAST桜橋ビル(フォーキャストサクラバシビル)
FORECAST桜橋ビル 7階 702 174.4坪 賃貸オフィス詳細
- 物件ID
- 31640
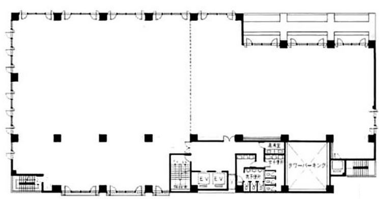
- FORECAST桜橋ビル(フォーキャストサクラバシビル) 7階 174.4坪
-
”FORECAST桜橋ビル(フォーキャストサクラバシビル)”は、 八丁堀駅から徒歩4分、新富町駅から徒歩6分、京橋駅から徒歩7分、築地駅から徒歩9分 の賃貸オフィスです。
1985年4月に竣工。構造は鉄骨鉄筋コンクリート(SRC造)。耐震構造は新耐震。
利用可能路線は京葉線、銀座線、日比谷線、有楽町線で、 用途は賃貸オフィスとなっています。最寄り駅は八丁堀駅と新富町駅と京橋駅と築地駅。 住所は中央区八丁堀4-5-4です。
ぜひ一度、内覧にお越しくださいませ。
フロア概要
| 階数 | 7階 702 | 面積 | 174.4坪(576.53m²) |
|---|---|---|---|
| 賃料/坪 | 相談 | 共益費/坪 | 相談 |
| 月額賃料 (共益費込) |
相談 | 入居日 | 2026年1月1日 |
| 敷金 (保証金) |
相談 | 礼金 | 無し |
| 償却費 | 無し | 更新料 | 無し |
| 契約 | 普通借家(2年) | ||
ビル概要
| 物件名 | FORECAST桜橋ビル(フォーキャストサクラバシビル) | ||
|---|---|---|---|
| 所在地 | 中央区八丁堀4-5-4 | ||
| 利用可能駅 | |||
| 利用可能 路線 |
|||
| 竣工 | 1985年4月 | リニューアル | 2006年1月 |
| 構造 | 鉄骨鉄筋コンクリート(SRC造) | 規模 | 1階/9階 |
| 耐震構造 | 新耐震 | ||
個別空調
新耐震
光ファイバー利用可
24時間利用可
OAフロア有り
駐車場有り
アクセス
このビルの募集中フロア一覧
| 所在階 | 面積 | 入居予定 | 賃料 | 共益費 | 賃料総額 |
|---|---|---|---|---|---|
| 2階 | 313.09坪 | - | - | - | - |
| 4階 | 305.05坪 | - | - | - | - |
| 5階 | 289.25坪 | - | - | - | - |
| 5階 | 118.15坪 | - | - | - | - |
| 6階 | 281.5坪 | - | - | - | - |
| 7階 | 174.4坪 | 2026年1月1日 | 相談 | 相談 | - |

