- 東京の賃貸オフィス・貸事務所TOP
- 港区
- 浜松町・田町・三田・高輪・白金エリア
- 芝公園大門通プラザビル(シバコウエンダイモンドオリプラザビル)
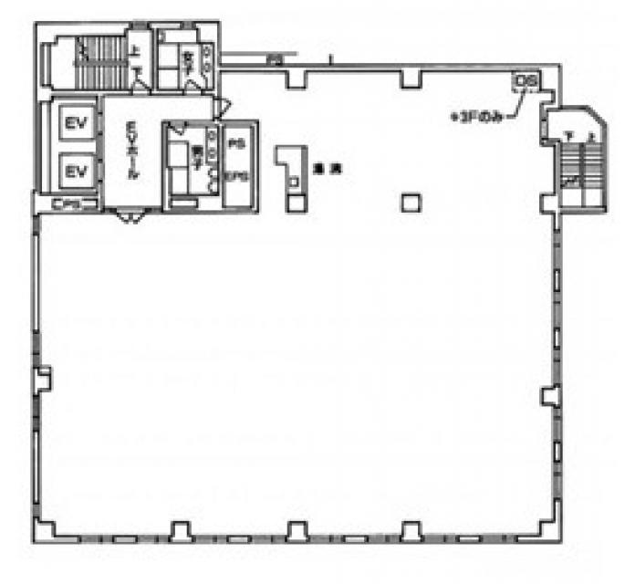
芝公園大門通プラザビル 5階 149.55坪 賃貸オフィス詳細
- 物件ID
- 29763
- 芝公園大門通プラザビル(シバコウエンダイモンドオリプラザビル) 5階 149.55坪
-
”芝公園大門通プラザビル(シバコウエンダイモンドオリプラザビル)”は、 大門駅から徒歩4分、芝公園駅から徒歩5分、御成門駅から徒歩6分、浜松町駅から徒歩7分 の賃貸オフィスです。
1991年3月29日に竣工。構造は鉄骨造(S造)。耐震構造は新耐震。
利用可能路線は山手線、都営大江戸線、都営三田線で、 用途は賃貸オフィスとなっています。最寄り駅は大門駅と芝公園駅と御成門駅と浜松町駅。 住所は港区芝公園1-8-12です。
ぜひ一度、内覧にお越しくださいませ。
フロア概要
| 階数 | 5階 | 面積 | 149.55坪(494.38m²) |
|---|---|---|---|
| 賃料/坪 | 相談 | 共益費/坪 | 賃料に含む |
| 月額賃料 (共益費込) |
相談 | 入居日 | 2026年4月下旬 |
| 敷金 (保証金) |
12ヶ月 | 礼金 | 無し |
| 償却費 | 無し | 更新料 | 無し |
| 契約 | 普通借家(2年) | ||
ビル概要
| 物件名 | 芝公園大門通プラザビル(シバコウエンダイモンドオリプラザビル) | ||
|---|---|---|---|
| 所在地 | 港区芝公園1-8-12 | ||
| 利用可能駅 | |||
| 利用可能 路線 |
|||
| 竣工 | 1991年3月29日 | リニューアル | - |
| 構造 | 鉄骨造(S造) | 規模 | B1階/9階 |
| 耐震構造 | 新耐震 | ||
個別空調
新耐震
光ファイバー利用可
24時間利用可
要確認
駐車場無し
アクセス
このビルの募集中フロア一覧
| 所在階 | 面積 | 入居予定 | 賃料 | 共益費 | 賃料総額 |
|---|---|---|---|---|---|
| 2階 | 147.53坪 | - | - | - | - |
| 3階 | 148.95坪 | - | - | - | - |
| 4階 | 149.55坪 | - | - | - | - |
| 5階 | 149.55坪 | 2026年4月下旬 | 相談 | 賃料に含む | - |
| 8階 | 123.69坪 | - | - | - | - |

