- 東京の賃貸オフィス・貸事務所TOP
- 港区
- 浜松町・田町・三田・高輪・白金エリア
- 三田UTビル(ミタユーティービル)
三田UTビル 2階 91.77坪 賃貸オフィス詳細
- 物件ID
- 29703
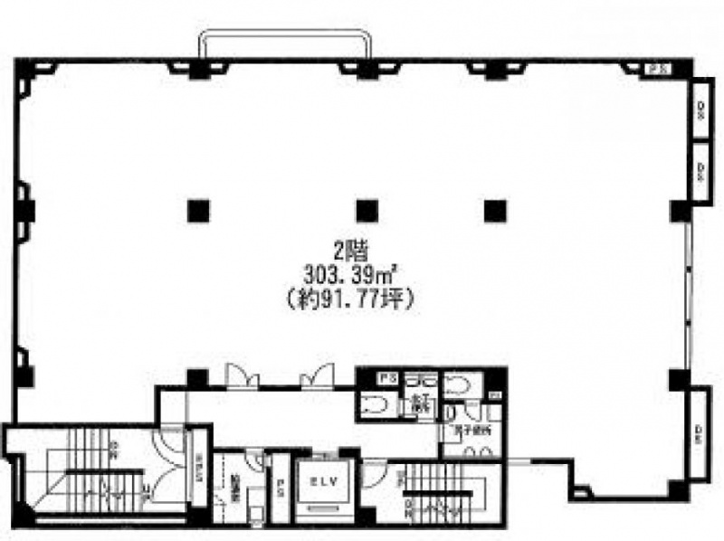
- 三田UTビル(ミタユーティービル) 2階 91.77坪
-
”三田UTビル(ミタユーティービル)”は、 三田駅から徒歩5分、田町駅から徒歩7分、赤羽橋駅から徒歩7分、芝公園駅から徒歩7分 の賃貸オフィスです。
1985年1月に竣工。構造は鉄骨鉄筋コンクリート(SRC造)。耐震構造は新耐震。
利用可能路線は山手線、都営大江戸線、都営浅草線、都営三田線で、 用途は賃貸オフィスとなっています。最寄り駅は三田駅と田町駅と赤羽橋駅と芝公園駅。 住所は港区芝3-42-10です。
ぜひ一度、内覧にお越しくださいませ。
フロア概要
| 階数 | 2階 | 面積 | 91.77坪(303.37m²) |
|---|---|---|---|
| 賃料/坪 | 相談 | 共益費/坪 | 3,000円/坪 |
| 月額賃料 (共益費込) |
相談 | 入居日 | 2026年4月1日 |
| 敷金 (保証金) |
10ヶ月 | 礼金 | 無し |
| 償却費 | 無し | 更新料 | 1ヶ月 |
| 契約 | 普通借家(2年) | ||
ビル概要
| 物件名 | 三田UTビル(ミタユーティービル) | ||
|---|---|---|---|
| 所在地 | 港区芝3-42-10 | ||
| 利用可能駅 | |||
| 利用可能 路線 |
|||
| 竣工 | 1985年1月 | リニューアル | - |
| 構造 | 鉄骨鉄筋コンクリート(SRC造) | 規模 | B1階/8階 |
| 耐震構造 | 新耐震 | ||
個別空調
新耐震
光ファイバー利用可
24時間利用可
OAフロア有り
駐車場無し
アクセス
このビルの募集中フロア一覧
| 所在階 | 面積 | 入居予定 | 賃料 | 共益費 | 賃料総額 |
|---|---|---|---|---|---|
| B1階 | 39.96坪 | - | - | - | - |
| 2階 | 91.77坪 | 2026年4月1日 | 相談 | 3,000円/坪 | - |
| 5階 | 62.84坪 | - | - | - | - |
| 6階 | 48.07坪 | - | - | - | - |
| 7階 | 34.66坪 | - | - | - | - |

