- 東京の賃貸オフィス・貸事務所TOP
- 港区
- お台場・芝浦・港南・海岸周辺エリア
- 田町きよたビル(タマチキヨタビル)
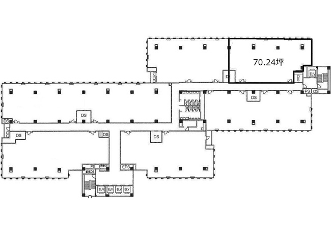
田町きよたビル 7階 ⑤ 70.24坪 賃貸オフィス詳細
- 物件ID
- 28972
- 田町きよたビル(タマチキヨタビル) 7階 70.24坪
-
”田町きよたビル(タマチキヨタビル)”は、 泉岳寺駅から徒歩5分、田町駅から徒歩10分 の賃貸オフィスです。
1982年5月に竣工。構造は鉄骨鉄筋コンクリート(SRC造)。耐震構造は新耐震。
利用可能路線は山手線、京急本線で、 用途は賃貸オフィスとなっています。最寄り駅は泉岳寺駅と田町駅。 住所は港区芝浦4-3-4です。
ぜひ一度、内覧にお越しくださいませ。
フロア概要
| 階数 | 7階 ⑤ | 面積 | 70.24坪(232.2m²) |
|---|---|---|---|
| 賃料/坪 | 相談 | 共益費/坪 | 3,800円/坪 |
| 月額賃料 (共益費込) |
相談 | 入居日 | 2026年4月未定 |
| 敷金 (保証金) |
12ヶ月 | 礼金 | 無し |
| 償却費 | 無し | 更新料 | 無し |
| 契約 | 普通借家(2年) | ||
ビル概要
| 物件名 | 田町きよたビル(タマチキヨタビル) | ||
|---|---|---|---|
| 所在地 | 港区芝浦4-3-4 | ||
| 利用可能駅 | |||
| 利用可能 路線 |
|||
| 竣工 | 1982年5月 | リニューアル | - |
| 構造 | 鉄骨鉄筋コンクリート(SRC造) | 規模 | B1階/9階 |
| 耐震構造 | 新耐震 | ||
セントラル空調
新耐震
光ファイバー利用可
24時間利用可
要確認
駐車場有り
アクセス
このビルの募集中フロア一覧
| 所在階 | 面積 | 入居予定 | 賃料 | 共益費 | 賃料総額 |
|---|---|---|---|---|---|
| B1階 | 561.27坪 | - | - | - | - |
| 4階 | 40.15坪 | - | - | - | - |
| 4階 | 46.95坪 | - | - | - | - |
| 4階 | 142.98坪 | - | - | - | - |
| 5階 | 240.66坪 | - | - | - | - |
| 5階 | 81.5坪 | - | - | - | - |
| 6階 | 87.1坪 | 2026年4月未定 | 相談 | 3,800円/坪 | - |
| 6階 | 70.24坪 | - | - | - | - |
| 6階 | 72.74坪 | - | - | - | - |
| 6階 | 81.5坪 | 2026年4月未定 | 相談 | 3,800円/坪 | - |
| 7階 | 81.5坪 | - | - | - | - |
| 7階 | 70.24坪 | 2026年4月未定 | 相談 | 3,800円/坪 | - |
| 7階 | 87.1坪 | 即 | 相談 | 3,800円/坪 | - |
| 8階 | 81.5坪 | - | - | - | - |
| 8階 | 590.58坪 | - | - | - | - |
| 8階 | 142.98坪 | - | - | - | - |
| 8階 | 87.1坪 | 2026年4月未定 | 相談 | 3,800円/坪 | - |
| 8階 | 250.37坪 | - | - | - | - |
もっと検索する
- 駅から検索
- エリアから検索

