- 東京の賃貸オフィス・貸事務所TOP
- 中央区
- 築地・新富・入船・湊・明石町周辺エリア
- RBM築地スクエア(アールビーエムツキジスクエア)
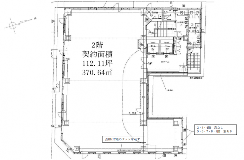
RBM築地スクエア 2階 112.11坪 賃貸オフィス詳細
- 物件ID
- 28531
- RBM築地スクエア(アールビーエムツキジスクエア) 2階 112.11坪
-
”RBM築地スクエア(アールビーエムツキジスクエア)”は、 新富町駅から徒歩4分、八丁堀駅から徒歩5分、築地駅から徒歩7分、京橋駅から徒歩9分 の賃貸オフィスです。
2003年11月28日に竣工。構造は鉄骨造(S造)。耐震構造は新耐震。
利用可能路線は京葉線、銀座線、日比谷線、有楽町線で、 用途は賃貸オフィスとなっています。最寄り駅は新富町駅と八丁堀駅と築地駅と京橋駅。 住所は中央区新富1-18-8です。
ぜひ一度、内覧にお越しくださいませ。
フロア概要
| 階数 | 2階 | 面積 | 112.11坪(370.61m²) |
|---|---|---|---|
| 賃料/坪 | 相談 | 共益費/坪 | 4,000円/坪 |
| 月額賃料 (共益費込) |
相談 | 入居日 | 2026年3月1日 |
| 敷金 (保証金) |
12ヶ月 | 礼金 | 無し |
| 償却費 | 無し | 更新料 | 無し |
| 契約 | 定期借家 | ||
ビル概要
| 物件名 | RBM築地スクエア(アールビーエムツキジスクエア) | ||
|---|---|---|---|
| 所在地 | 中央区新富1-18-8 | ||
| 利用可能駅 | |||
| 利用可能 路線 |
|||
| 竣工 | 2003年11月28日 | リニューアル | - |
| 構造 | 鉄骨造(S造) | 規模 | B1階/9階 |
| 耐震構造 | 新耐震 | ||
個別空調
新耐震
光ファイバー利用可
24時間利用可
OAフロア有り
駐車場有り
アクセス
このビルの募集中フロア一覧
| 所在階 | 面積 | 入居予定 | 賃料 | 共益費 | 賃料総額 |
|---|---|---|---|---|---|
| 1階 | 30.98坪 | - | - | - | - |
| 1階 | 11.63坪 | - | - | - | - |
| 2階 | 112.11坪 | 2026年3月1日 | 相談 | 4,000円/坪 | - |
| 3階 | 112.72坪 | - | - | - | - |
| 4階 | 112.72坪 | 2026年3月1日 | 相談 | 4,000円/坪 | - |
| 5階 | 112.72坪 | 2026年3月1日 | 相談 | 4,000円/坪 | - |

