- 東京の賃貸オフィス・貸事務所TOP
- 千代田区
- 麹町・半蔵門・永田町エリア
- 麹町広洋ビル(コウジマチコウヨウビル)
麹町広洋ビル 2階 175.48坪 賃貸オフィス詳細
- 物件ID
- 28065
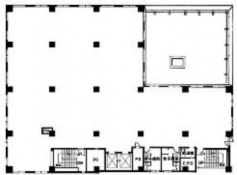
- 麹町広洋ビル(コウジマチコウヨウビル) 2階 175.48坪
-
”麹町広洋ビル(コウジマチコウヨウビル)”は、 半蔵門駅から徒歩2分、麹町駅から徒歩6分 の賃貸オフィスです。
1983年7月に竣工。構造は鉄骨鉄筋コンクリート(SRC造)。耐震構造は新耐震。
利用可能路線は有楽町線、半蔵門線で、 用途は賃貸オフィスとなっています。最寄り駅は半蔵門駅と麹町駅。 住所は千代田区麹町1-10です。
ぜひ一度、内覧にお越しくださいませ。
フロア概要
| 階数 | 2階 | 面積 | 175.48坪(580.1m²) |
|---|---|---|---|
| 賃料/坪 | 19,000円/坪 | 共益費/坪 | 賃料に含む |
| 月額賃料 (共益費込) |
3,334,120円 | 入居日 | 2026年3月上旬 |
| 敷金 (保証金) |
10ヶ月 | 礼金 | 無し |
| 償却費 | 無し | 更新料 | 無し |
| 契約 | 普通借家(2年) | ||
ビル概要
| 物件名 | 麹町広洋ビル(コウジマチコウヨウビル) | ||
|---|---|---|---|
| 所在地 | 千代田区麹町1-10 | ||
| 利用可能駅 | |||
| 利用可能 路線 |
|||
| 竣工 | 1983年7月 | リニューアル | - |
| 構造 | 鉄骨鉄筋コンクリート(SRC造) | 規模 | B1階/8階 |
| 耐震構造 | 新耐震 | ||
個別空調
新耐震
光ファイバー利用可
24時間利用可
OAフロア有り
駐車場有り
アクセス
このビルの募集中フロア一覧
| 所在階 | 面積 | 入居予定 | 賃料 | 共益費 | 賃料総額 |
|---|---|---|---|---|---|
| 2階 | 175.48坪 | 2026年3月上旬 | 19,000円/坪 | 賃料に含む | 3,334,120円/月 |
| 3階 | 179.21坪 | - | - | - | - |
| 5階 | 179.21坪 | 即 | 19,000円/坪 | 賃料に含む | 3,404,990円/月 |
もっと検索する
- 駅から検索
- エリアから検索

