- 東京の賃貸オフィス・貸事務所TOP
- 新宿区
- 市ヶ谷・神楽坂・牛込周辺エリア
- KDX飯田橋ビル(ケーディーエックスイイダバシビル)
KDX飯田橋ビル 2階 179.7坪 賃貸オフィス詳細
- 物件ID
- 27845
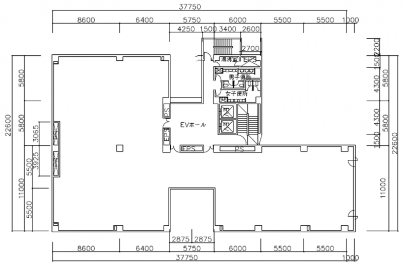
- KDX飯田橋ビル(ケーディーエックスイイダバシビル) 2階 179.7坪
-
”KDX飯田橋ビル(ケーディーエックスイイダバシビル)”は、 飯田橋駅から徒歩3分、牛込神楽坂駅から徒歩10分 の賃貸オフィスです。
1989年3月に竣工。構造は鉄骨鉄筋コンクリート(SRC造)。耐震構造は新耐震。
利用可能路線は中央線(快速)、都営大江戸線で、 用途は賃貸オフィスとなっています。最寄り駅は飯田橋駅と牛込神楽坂駅。 住所は新宿区下宮比町2-26です。
ぜひ一度、内覧にお越しくださいませ。
フロア概要
| 階数 | 2階 | 面積 | 179.7坪(594.05m²) |
|---|---|---|---|
| 賃料/坪 | 相談 | 共益費/坪 | 賃料に含む |
| 月額賃料 (共益費込) |
相談 | 入居日 | 2026年2月1日 |
| 敷金 (保証金) |
相談 | 礼金 | 無し |
| 償却費 | 無し | 更新料 | 無し |
| 契約 | 定期借家 | ||
ビル概要
| 物件名 | KDX飯田橋ビル(ケーディーエックスイイダバシビル) | ||
|---|---|---|---|
| 所在地 | 新宿区下宮比町2-26 | ||
| 利用可能駅 | |||
| 利用可能 路線 |
|||
| 竣工 | 1989年3月 | リニューアル | - |
| 構造 | 鉄骨鉄筋コンクリート(SRC造) | 規模 | B1階/8階 |
| 耐震構造 | 新耐震 | ||
個別空調
新耐震
光ファイバー利用可
24時間利用可
OAフロア有り
駐車場有り
アクセス
このビルの募集中フロア一覧
| 所在階 | 面積 | 入居予定 | 賃料 | 共益費 | 賃料総額 |
|---|---|---|---|---|---|
| 1階 | 71.26坪 | 2026年2月1日 | 相談 | 賃料に含む | - |
| 2階 | 179.7坪 | 2026年2月1日 | 相談 | 賃料に含む | - |
| 3階 | 112.1坪 | - | - | - | - |
| 4階 | 64.67坪 | - | - | - | - |
| 4階 | 179.7坪 | - | - | - | - |
| 4階 | 107.33坪 | - | - | - | - |
| 4階 | 64.68坪 | - | - | - | - |
| 5階 | 64.67坪 | - | - | - | - |
| 5階 | 107.33坪 | - | - | - | - |
| 6階 | 54.7坪 | - | - | - | - |
| 6階 | 52.61坪 | - | - | - | - |
| 6階 | 66.05坪 | 2026年2月1日 | 相談 | 賃料に含む | - |
| 6階 | 54.7坪 | - | - | - | - |
| 7階 | 181.79坪 | - | - | - | - |

