- 東京の賃貸オフィス・貸事務所TOP
- 港区
- 新橋・汐留エリア
- 石井ビル(イシイビル)
石井ビル 5階 33.46坪 賃貸オフィス詳細
- 物件ID
- 25919
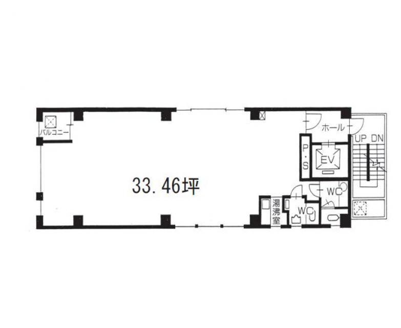
- 石井ビル(イシイビル) 5階 33.46坪
-
”石井ビル(イシイビル)”は、 内幸町駅から徒歩5分、新橋駅から徒歩5分、御成門駅から徒歩8分、虎ノ門駅から徒歩8分、汐留駅から徒歩9分 の賃貸オフィスです。
1988年8月に竣工。構造は鉄骨造(S造)。耐震構造は新耐震。
利用可能路線は都営三田線、都営大江戸線、銀座線、東海道本線で、 用途は賃貸オフィスとなっています。最寄り駅は内幸町駅と新橋駅と御成門駅と虎ノ門駅と汐留駅。 住所は港区新橋3-1-10です。
ぜひ一度、内覧にお越しくださいませ。
フロア概要
| 階数 | 5階 | 面積 | 33.46坪(110.61m²) |
|---|---|---|---|
| 賃料/坪 | 16,000円/坪 | 共益費/坪 | 3,000円/坪 |
| 月額賃料 (共益費込) |
635,740円 | 入居日 | 即 |
| 敷金 (保証金) |
7ヶ月 | 礼金 | 無し |
| 償却費 | 2ヶ月 | 更新料 | 1ヶ月 |
| 契約 | 普通借家(2年) | ||
ビル概要
| 物件名 | 石井ビル(イシイビル) | ||
|---|---|---|---|
| 所在地 | 港区新橋3-1-10 | ||
| 利用可能駅 | |||
| 利用可能 路線 |
|||
| 竣工 | 1988年8月 | リニューアル | - |
| 構造 | 鉄骨造(S造) | 規模 | 1階/9階 |
| 耐震構造 | 新耐震 | ||
個別空調
新耐震
光ファイバー利用可
24時間利用可
OAフロア無し
要確認
アクセス
このビルの募集中フロア一覧
| 所在階 | 面積 | 入居予定 | 賃料 | 共益費 | 賃料総額 |
|---|---|---|---|---|---|
| 4階 | 33.46坪 | 即 | 16,000円/坪 | 3,000円/坪 | 535,360円/月 |
| 5階 | 33.46坪 | 即 | 16,000円/坪 | 3,000円/坪 | 535,360円/月 |
| 7階 | 33.46坪 | 即 | 14,000円/坪 | 3,000円/坪 | 468,440円/月 |
| 8階 | 33.46坪 | 即 | 16,000円/坪 | 3,000円/坪 | 535,360円/月 |
もっと検索する
- 駅から検索
- エリアから検索

