- 東京の賃貸オフィス・貸事務所TOP
- 港区
- 新橋・汐留エリア
- 新橋6丁目ビル(シンバシ6チョウメビル)
新橋6丁目ビル 2階 B 45.71坪 賃貸オフィス詳細
- 物件ID
- 20882
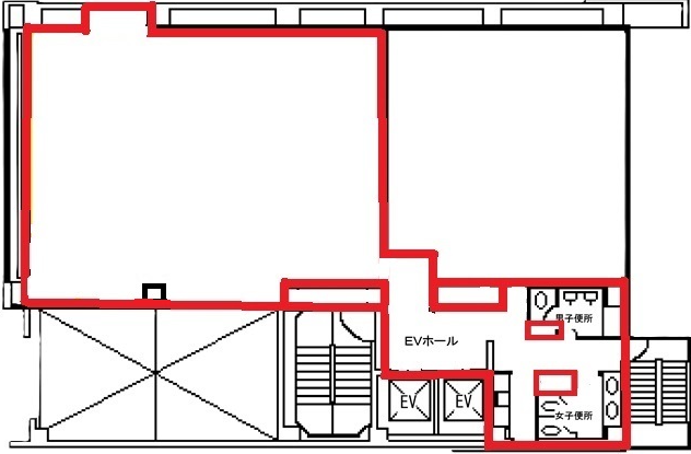
- 新橋6丁目ビル(シンバシ6チョウメビル) 2階 45.71坪
-
”新橋6丁目ビル(シンバシ6チョウメビル)”は、 御成門駅から徒歩5分、大門駅から徒歩7分、汐留駅から徒歩7分、新橋駅から徒歩8分、浜松町駅から徒歩9分 の賃貸オフィスです。
1987年12月15日に竣工。構造は鉄骨鉄筋コンクリート(SRC造)。耐震構造は新耐震。
利用可能路線は都営三田線、都営大江戸線、山手線、東海道本線で、 用途は賃貸オフィスとなっています。最寄り駅は御成門駅と大門駅と汐留駅と新橋駅と浜松町駅。 住所は港区新橋6-9-4です。
ぜひ一度、内覧にお越しくださいませ。
フロア概要
| 階数 | 2階 B | 面積 | 45.71坪(151.11m²) |
|---|---|---|---|
| 賃料/坪 | 相談 | 共益費/坪 | 賃料に含む |
| 月額賃料 (共益費込) |
相談 | 入居日 | 2026年3月中旬 |
| 敷金 (保証金) |
無し | 礼金 | 無し |
| 償却費 | 無し | 更新料 | 無し |
| 契約 | 普通借家(2年) | ||
ビル概要
| 物件名 | 新橋6丁目ビル(シンバシ6チョウメビル) | ||
|---|---|---|---|
| 所在地 | 港区新橋6-9-4 | ||
| 利用可能駅 | |||
| 利用可能 路線 |
|||
| 竣工 | 1987年12月15日 | リニューアル | 2008年 |
| 構造 | 鉄骨鉄筋コンクリート(SRC造) | 規模 | B2階/8階 |
| 耐震構造 | 新耐震 | ||
個別空調
新耐震
光ファイバー利用可
24時間利用可
OAフロア有り
駐車場有り
アクセス
このビルの募集中フロア一覧
| 所在階 | 面積 | 入居予定 | 賃料 | 共益費 | 賃料総額 |
|---|---|---|---|---|---|
| 2階 | 45.71坪 | 2026年3月中旬 | 相談 | 賃料に含む | - |
| 3階 | 77.19坪 | 2026年2月10日 | 相談 | 賃料に含む | - |
| 4階 | 76.8坪 | - | - | - | - |
| 5階 | 76.21坪 | - | - | - | - |
| 7階 | 75.76坪 | - | - | - | - |
| 8階 | 29.12坪 | - | - | - | - |
| 8階 | 45.69坪 | - | - | - | - |
もっと検索する
- 駅から検索
- エリアから検索

