- 東京の賃貸オフィス・貸事務所TOP
- 千代田区
- 内神田・小川町・淡路町エリア
- 興信ビル(コウシンビル)
興信ビル 8階 78.79坪 賃貸オフィス詳細
- 物件ID
- 180165
- 興信ビル(コウシンビル) 8階 78.79坪
-
”興信ビル(コウシンビル)”は、 淡路町駅から徒歩3分、御茶ノ水駅から徒歩7分、神田駅から徒歩9分、秋葉原駅から徒歩10分、神保町駅から徒歩10分 の賃貸オフィスです。
1984年9月に竣工。構造は鉄骨鉄筋コンクリート(SRC造)。耐震構造は新耐震。
利用可能路線は山手線、中央線(快速)、丸ノ内線、半蔵門線で、 用途は賃貸オフィスとなっています。最寄り駅は淡路町駅と御茶ノ水駅と神田駅と秋葉原駅と神保町駅。 住所は千代田区神田小川町1-10です。
ぜひ一度、内覧にお越しくださいませ。
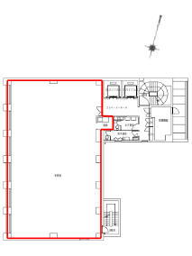
フロア概要
| 階数 | 8階 | 面積 | 78.79坪(260.46m²) |
|---|---|---|---|
| 賃料/坪 | 相談 | 共益費/坪 | 4,000円/坪 |
| 月額賃料 (共益費込) |
相談 | 入居日 | 2026年2月1日 |
| 敷金 (保証金) |
12ヶ月 | 礼金 | 無し |
| 償却費 | 相談 | 更新料 | 相談 |
| 契約 | 定期借家(3年) | ||
ビル概要
| 物件名 | 興信ビル(コウシンビル) | ||
|---|---|---|---|
| 所在地 | 千代田区神田小川町1-10 | ||
| 利用可能駅 | |||
| 利用可能 路線 |
|||
| 竣工 | 1984年9月 | リニューアル | - |
| 構造 | 鉄骨鉄筋コンクリート(SRC造) | 規模 | B1階/8階 |
| 耐震構造 | 新耐震 | ||
要確認
新耐震
要確認
要確認
要確認
要確認
アクセス
このビルの募集中フロア一覧
| 所在階 | 面積 | 入居予定 | 賃料 | 共益費 | 賃料総額 |
|---|---|---|---|---|---|
| B1階 | 110.29坪 | - | - | - | - |
| 1階 | 37.52坪 | - | - | - | - |
| 2階 | 78.79坪 | - | - | - | - |
| 3階 | 78.79坪 | - | - | - | - |
| 4階 | 78.79坪 | 2026年2月1日 | 相談 | 4,000円/坪 | - |
| 5階 | 78.79坪 | 2026年2月1日 | 相談 | 4,000円/坪 | - |
| 6階 | 78.79坪 | - | - | - | - |
| 7階 | 78.79坪 | - | - | - | - |
| 8階 | 78.79坪 | 2026年2月1日 | 相談 | 4,000円/坪 | - |

