- 東京の賃貸オフィス・貸事務所TOP
- 渋谷区
- 代々木・千駄ヶ谷・北参道エリア
- 第16スカイビル(ダイ16スカイビル)
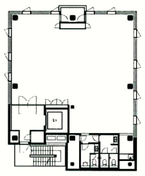
第16スカイビル 1階 101 52.04坪 賃貸オフィス詳細
- 物件ID
- 176130
- 第16スカイビル(ダイ16スカイビル) 1階 52.04坪
-
”第16スカイビル(ダイ16スカイビル)”は、 北参道駅から徒歩3分、千駄ケ谷駅から徒歩9分、代々木駅から徒歩10分、原宿駅から徒歩10分 の賃貸オフィスです。
2017年12月に竣工。構造は鉄骨造(S造)。耐震構造は新耐震。
利用可能路線は都営大江戸線、副都心線、千代田線、丸ノ内線、銀座線、小田急小田原線、中央線(快速)、山手線で、 用途は賃貸オフィスとなっています。最寄り駅は北参道駅と千駄ケ谷駅と代々木駅と原宿駅。 住所は渋谷区千駄ヶ谷3-14-5です。
ぜひ一度、内覧にお越しくださいませ。
フロア概要
| 階数 | 1階 101 | 面積 | 52.04坪(172.03m²) |
|---|---|---|---|
| 賃料/坪 | 相談 | 共益費/坪 | 賃料に含む |
| 月額賃料 (共益費込) |
相談 | 入居日 | 即 |
| 敷金 (保証金) |
10ヶ月 | 礼金 | 無し |
| 償却費 | 1ヶ月 | 更新料 | 無し |
| 契約 | 定期借家(2年) | ||
ビル概要
| 物件名 | 第16スカイビル(ダイ16スカイビル) | ||
|---|---|---|---|
| 所在地 | 渋谷区千駄ヶ谷3-14-5 | ||
| 利用可能駅 | |||
| 利用可能 路線 |
|||
| 竣工 | 2017年12月 | リニューアル | - |
| 構造 | 鉄骨造(S造) | 規模 | 1階/9階 |
| 耐震構造 | 新耐震 | ||
個別空調
新耐震
光ファイバー利用可
24時間利用可
要確認
駐車場無し
アクセス
このビルの募集中フロア一覧
| 所在階 | 面積 | 入居予定 | 賃料 | 共益費 | 賃料総額 |
|---|---|---|---|---|---|
| 1階 | 52.04坪 | 即 | 相談 | 賃料に含む | - |
| 1階 | 52.036坪 | - | - | - | - |
| 2階 | 57.166坪 | - | - | - | - |
| 3階 | 56.74坪 | - | - | - | - |
| 4階 | 56.74坪 | - | - | - | - |
| 5階 | 48.82坪 | - | - | - | - |
| 6階 | 48.82坪 | - | - | - | - |
| 6階 | 48.69坪 | - | - | - | - |
| 7階 | 48.69坪 | - | - | - | - |
| 7階 | 48.82坪 | - | - | - | - |
| 8階 | 48.69坪 | - | - | - | - |
| 8階 | 48.82坪 | - | - | - | - |
| 9階 | 33.37坪 | - | - | - | - |
| 9階 | 30.36坪 | - | - | - | - |

