- 東京の賃貸オフィス・貸事務所TOP
- 港区
- 溜池山王・赤坂・赤坂見附エリア
- アカサカセブンスアヴェニュービル(アカサカセブンスアヴェニュービル)
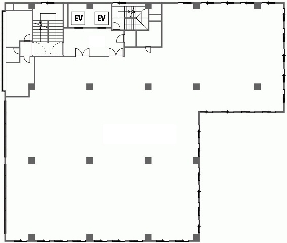
アカサカセブンスアヴェニュービル 4階 198.75坪 賃貸オフィス詳細
- 物件ID
- 175372
- アカサカセブンスアヴェニュービル(アカサカセブンスアヴェニュービル) 4階 198.75坪
-
”アカサカセブンスアヴェニュービル(アカサカセブンスアヴェニュービル)”は、 乃木坂駅から徒歩9分、赤坂駅から徒歩9分、六本木駅から徒歩10分、六本木一丁目駅から徒歩10分 の賃貸オフィスです。
1985年11月に竣工。構造は鉄骨鉄筋コンクリート(SRC造)。耐震構造は新耐震。
利用可能路線は都営大江戸線、南北線、有楽町線、千代田線、日比谷線、銀座線で、 用途は賃貸オフィスとなっています。最寄り駅は乃木坂駅と赤坂駅と六本木駅と六本木一丁目駅。 住所は港区赤坂7-10-20です。
ぜひ一度、内覧にお越しくださいませ。
フロア概要
| 階数 | 4階 | 面積 | 198.75坪(657.05m²) |
|---|---|---|---|
| 賃料/坪 | 18,000円/坪 | 共益費/坪 | 4,000円/坪 |
| 月額賃料 (共益費込) |
4,372,500円 | 入居日 | 即 |
| 敷金 (保証金) |
12ヶ月 | 礼金 | 無し |
| 償却費 | 無し | 更新料 | 無し |
| 契約 | 定期借家(2年) | ||
ビル概要
| 物件名 | アカサカセブンスアヴェニュービル(アカサカセブンスアヴェニュービル) | ||
|---|---|---|---|
| 所在地 | 港区赤坂7-10-20 | ||
| 利用可能駅 | |||
| 利用可能 路線 |
|||
| 竣工 | 1985年11月 | リニューアル | - |
| 構造 | 鉄骨鉄筋コンクリート(SRC造) | 規模 | 1階/8階 |
| 耐震構造 | 新耐震 | ||
セントラル空調
新耐震
光ファイバー利用可
24時間利用可
OAフロア無し
駐車場有り
アクセス
このビルの募集中フロア一覧
| 所在階 | 面積 | 入居予定 | 賃料 | 共益費 | 賃料総額 |
|---|---|---|---|---|---|
| 1階 | 161坪 | - | - | - | - |
| 1階 | 157.14坪 | 即 | 21,000円/坪 | 4,000円/坪 | 3,299,940円/月 |
| 2階 | 279.64坪 | 即 | 18,000円/坪 | 4,000円/坪 | 5,033,520円/月 |
| 3階 | 241.51坪 | 即 | 18,000円/坪 | 4,000円/坪 | 4,347,180円/月 |
| 4階 | 198.75坪 | 即 | 18,000円/坪 | 4,000円/坪 | 3,577,500円/月 |
| 4階 | 59坪 | - | - | - | - |
| 6階 | 175坪 | 即 | 18,000円/坪 | 4,000円/坪 | 3,150,000円/月 |
| 7階 | 122.67坪 | 即 | 18,000円/坪 | 4,000円/坪 | 2,208,060円/月 |
| 7階 | 198.75坪 | 即 | 18,000円/坪 | 4,000円/坪 | 3,577,500円/月 |
| 8階 | 69.07坪 | 相談 | 18,000円/坪 | 4,000円/坪 | 1,243,260円/月 |

