- 東京の賃貸オフィス・貸事務所TOP
- 港区
- 浜松町・田町・三田・高輪・白金エリア
- SOC高輪ビル(エスオーシータカナワビル)
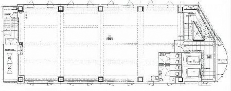
SOC高輪ビル 8階 79.46坪 賃貸オフィス詳細
- 物件ID
- 1466
- SOC高輪ビル(エスオーシータカナワビル) 8階 79.46坪
-
”SOC高輪ビル(エスオーシータカナワビル)”は、 品川駅から徒歩6分、高輪台駅から徒歩9分、泉岳寺駅から徒歩9分 の賃貸オフィスです。
2008年11月に竣工。構造は鉄骨造(S造)。耐震構造は新耐震。
利用可能路線は都営浅草線、京急本線、東海道本線で、 用途は賃貸オフィスとなっています。最寄り駅は品川駅と高輪台駅と泉岳寺駅。 住所は港区高輪3-19-26です。
ぜひ一度、内覧にお越しくださいませ。
フロア概要
| 階数 | 8階 | 面積 | 79.46坪(262.68m²) |
|---|---|---|---|
| 賃料/坪 | 25,000円/坪 | 共益費/坪 | 賃料に含む |
| 月額賃料 (共益費込) |
1,986,500円 | 入居日 | 2026年2月1日 |
| 敷金 (保証金) |
12ヶ月 | 礼金 | 無し |
| 償却費 | 無し | 更新料 | 無し |
| 契約 | 普通借家(2年) | ||
ビル概要
| 物件名 | SOC高輪ビル(エスオーシータカナワビル) | ||
|---|---|---|---|
| 所在地 | 港区高輪3-19-26 | ||
| 利用可能駅 | |||
| 利用可能 路線 |
|||
| 竣工 | 2008年11月 | リニューアル | - |
| 構造 | 鉄骨造(S造) | 規模 | 1階/9階 |
| 耐震構造 | 新耐震 | ||
個別空調
新耐震
光ファイバー利用可
24時間利用可
OAフロア有り
駐車場有り
アクセス
このビルの募集中フロア一覧
| 所在階 | 面積 | 入居予定 | 賃料 | 共益費 | 賃料総額 |
|---|---|---|---|---|---|
| 2階 | 79.46坪 | - | - | - | - |
| 4階 | 79.46坪 | - | - | - | - |
| 5階 | 79.46坪 | - | - | - | - |
| 8階 | 79.46坪 | 2026年2月1日 | 25,000円/坪 | 賃料に含む | 1,986,500円/月 |
| 9階 | 79.46坪 | - | - | - | - |

