- 東京の賃貸オフィス・貸事務所TOP
- 港区
- 六本木・西麻布・麻布十番周辺エリア
- クローバー六本木(クローバーロッポンギ)
クローバー六本木 B1階 26.95坪 賃貸オフィス詳細
- 物件ID
- 14623
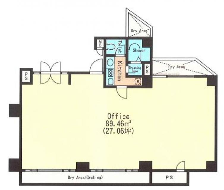
- クローバー六本木(クローバーロッポンギ) B1階 26.95坪
-
”クローバー六本木(クローバーロッポンギ)”は、 乃木坂駅から徒歩1分、六本木駅から徒歩9分、青山一丁目駅から徒歩10分 の賃貸オフィスです。
2006年10月に竣工。構造は鉄骨鉄筋コンクリート(SRC造)。耐震構造は新耐震。
利用可能路線は銀座線、日比谷線、千代田線で、 用途は賃貸オフィスとなっています。最寄り駅は乃木坂駅と六本木駅と青山一丁目駅。 住所は港区六本木7-1-19です。
ぜひ一度、内覧にお越しくださいませ。
フロア概要
| 階数 | B1階 | 面積 | 26.95坪(89.1m²) |
|---|---|---|---|
| 賃料/坪 | 22,273円/坪 | 共益費/坪 | 賃料に含む |
| 月額賃料 (共益費込) |
600,250円 | 入居日 | 即 |
| 敷金 (保証金) |
4ヶ月 | 礼金 | 無し |
| 償却費 | 無し | 更新料 | 1ヶ月 |
| 契約 | 普通借家(2年) | ||
ビル概要
| 物件名 | クローバー六本木(クローバーロッポンギ) | ||
|---|---|---|---|
| 所在地 | 港区六本木7-1-19 | ||
| 利用可能駅 | |||
| 利用可能 路線 |
|||
| 竣工 | 2006年10月 | リニューアル | - |
| 構造 | 鉄骨鉄筋コンクリート(SRC造) | 規模 | B1階/16階 |
| 耐震構造 | 新耐震 | ||
個別空調
新耐震
光ファイバー利用可
要確認
OAフロア無し
駐車場有り
アクセス
このビルの募集中フロア一覧
| 所在階 | 面積 | 入居予定 | 賃料 | 共益費 | 賃料総額 |
|---|---|---|---|---|---|
| B1階 | 26.95坪 | 即 | 22,273円/坪 | 賃料に含む | 600,250円/月 |
| 1階 | 11.69坪 | - | - | - | - |
| 1階 | 26.95坪 | - | - | - | - |

