- 東京の賃貸オフィス・貸事務所TOP
- 渋谷区
- 恵比寿・代官山・広尾周辺エリア
- 恵比寿パークテラス(エビスパークテラス)
恵比寿パークテラス B1階 ~2階一括貸 116.89坪 賃貸オフィス詳細
- 物件ID
- 125449
- 恵比寿パークテラス(エビスパークテラス) B1階 116.89坪
-
”恵比寿パークテラス(エビスパークテラス)”は、 恵比寿駅から徒歩7分 の賃貸オフィスです。
1998年3月に竣工。構造は鉄筋コンクリート(RC造)。耐震構造は新耐震。
利用可能路線は山手線、日比谷線で、 用途は賃貸オフィスとなっています。最寄り駅は恵比寿駅。 住所は渋谷区恵比寿4-25-4です。
ぜひ一度、内覧にお越しくださいませ。
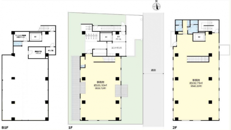
フロア概要
| 階数 | B1階 ~2階一括貸 | 面積 | 116.89坪(386.41m²) |
|---|---|---|---|
| 賃料/坪 | 相談 | 共益費/坪 | 賃料に含む |
| 月額賃料 (共益費込) |
相談 | 入居日 | 2026年1月15日 |
| 敷金 (保証金) |
6ヶ月 | 礼金 | 1ヶ月 |
| 償却費 | 1ヶ月 | 更新料 | 無し |
| 契約 | 定期借家(3年) | ||
| 備考 | B1階(倉庫) 39.98坪 1階 30.71坪 2階 46.20坪 |
||
ビル概要
| 物件名 | 恵比寿パークテラス(エビスパークテラス) | ||
|---|---|---|---|
| 所在地 | 渋谷区恵比寿4-25-4 | ||
| 利用可能駅 |
|
||
| 利用可能 路線 |
|||
| 竣工 | 1998年3月 | リニューアル | - |
| 構造 | 鉄筋コンクリート(RC造) | 規模 | B1階/6階 |
| 耐震構造 | 新耐震 | ||
要確認
新耐震
光ファイバー利用可
24時間利用可
要確認
要確認
アクセス
このビルの募集中フロア一覧
| 所在階 | 面積 | 入居予定 | 賃料 | 共益費 | 賃料総額 |
|---|---|---|---|---|---|
| B1階 | 116.89坪 | 2026年1月15日 | 相談 | 賃料に含む | - |
もっと検索する
- 駅から検索
- エリアから検索

