- 東京の賃貸オフィス・貸事務所TOP
- 中央区
- 築地・新富・入船・湊・明石町周辺エリア
- ACN築地テラスビル(旧:M.BALANCE+GINZA EAST)(エーシーエヌツキジテラスビル(エムバランスプラスギンザイースト))
ACN築地テラスビル(旧:M.BALANCE+GINZA EAST) 3階 30.29坪 賃貸オフィス詳細
- 物件ID
- 123813
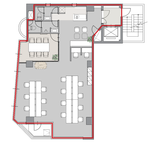
- ACN築地テラスビル(旧:M.BALANCE+GINZA EAST)(エーシーエヌツキジテラスビル(エムバランスプラスギンザイースト)) 3階 30.29坪
-
”ACN築地テラスビル(旧:M.BALANCE+GINZA EAST)(エーシーエヌツキジテラスビル(エムバランスプラスギンザイースト))”は、 新富町駅から徒歩2分、築地駅から徒歩3分、東銀座駅から徒歩8分、八丁堀駅から徒歩9分、銀座一丁目駅から徒歩10分 の賃貸オフィスです。
1989年5月に竣工。構造は鉄筋コンクリート(RC造)。耐震構造は新耐震。
利用可能路線は都営大江戸線、有楽町線、日比谷線、銀座線、京葉線、山手線、東海道本線で、 用途は賃貸オフィスとなっています。最寄り駅は新富町駅と築地駅と東銀座駅と八丁堀駅と銀座一丁目駅。 住所は中央区築地2-2-8です。
ぜひ一度、内覧にお越しくださいませ。
フロア概要
| 階数 | 3階 | 面積 | 30.29坪(100.14m²) |
|---|---|---|---|
| 賃料/坪 | 相談 | 共益費/坪 | 賃料に含む |
| 月額賃料 (共益費込) |
相談 | 入居日 | 即 |
| 敷金 (保証金) |
8ヶ月 | 礼金 | 無し |
| 償却費 | 1ヶ月 | 更新料 | 無し |
| 契約 | 定期借家(3年) | ||
ビル概要
| 物件名 | ACN築地テラスビル(旧:M.BALANCE+GINZA EAST)(エーシーエヌツキジテラスビル(エムバランスプラスギンザイースト)) | ||
|---|---|---|---|
| 所在地 | 中央区築地2-2-8 | ||
| 利用可能駅 | |||
| 利用可能 路線 |
|||
| 竣工 | 1989年5月 | リニューアル | 2023年5月 |
| 構造 | 鉄筋コンクリート(RC造) | 規模 | B1階/6階 |
| 耐震構造 | 新耐震 | ||
個別空調
新耐震
光ファイバー利用可
要確認
OAフロア有り
要確認
アクセス
このビルの募集中フロア一覧
| 所在階 | 面積 | 入居予定 | 賃料 | 共益費 | 賃料総額 |
|---|---|---|---|---|---|
| 1階 | 44.47坪 | 即 | 相談 | 賃料に含む | - |
| 2階 | 30.29坪 | - | - | - | - |
| 3階 | 30.29坪 | 即 | 相談 | 賃料に含む | - |
| 4階 | 30.29坪 | - | - | - | - |
| 5階 | 24.52坪 | 即 | 相談 | 賃料に含む | - |
| 6階 | 16.48坪 | - | - | - | - |

