- 東京の賃貸オフィス・貸事務所TOP
- 中央区
- 築地・新富・入船・湊・明石町周辺エリア
- 築地センタービル(ツキジセンタービル)
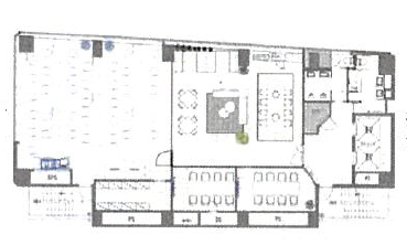
築地センタービル 9階 75.19坪 賃貸オフィス詳細
- 物件ID
- 123648
- 築地センタービル(ツキジセンタービル) 9階 75.19坪
-
”築地センタービル(ツキジセンタービル)”は、 築地駅から徒歩5分、築地市場駅から徒歩6分、東銀座駅から徒歩9分、新富町駅から徒歩9分 の賃貸オフィスです。
1993年6月に竣工。構造は鉄骨鉄筋コンクリート(SRC造)。耐震構造は新耐震。
利用可能路線は日比谷線、有楽町線、都営大江戸線で、 用途は賃貸オフィスとなっています。最寄り駅は築地駅と築地市場駅と東銀座駅と新富町駅。 住所は中央区築地6-25-10です。
ぜひ一度、内覧にお越しくださいませ。
フロア概要
| 階数 | 9階 | 面積 | 75.19坪(248.56m²) |
|---|---|---|---|
| 賃料/坪 | 23,000円/坪 | 共益費/坪 | 賃料に含む |
| 月額賃料 (共益費込) |
1,729,370円 | 入居日 | 即 |
| 敷金 (保証金) |
6ヶ月 | 礼金 | 1ヶ月 |
| 償却費 | 無し | 更新料 | 1ヶ月 |
| 契約 | 普通借家(2年) | ||
ビル概要
| 物件名 | 築地センタービル(ツキジセンタービル) | ||
|---|---|---|---|
| 所在地 | 中央区築地6-25-10 | ||
| 利用可能駅 | |||
| 利用可能 路線 |
|||
| 竣工 | 1993年6月 | リニューアル | - |
| 構造 | 鉄骨鉄筋コンクリート(SRC造) | 規模 | B1階/11階 |
| 耐震構造 | 新耐震 | ||
個別空調
新耐震
光ファイバー利用可
24時間利用可
OAフロア有り
駐車場有り
アクセス
このビルの募集中フロア一覧
| 所在階 | 面積 | 入居予定 | 賃料 | 共益費 | 賃料総額 |
|---|---|---|---|---|---|
| 5階 | 75.19坪 | 2026年3月15日 | 17,000円/坪 | 賃料に含む | 1,278,230円/月 |
| 6階 | 75.19坪 | 相談 | 17,000円/坪 | 賃料に含む | 1,278,230円/月 |
| 7階 | 75.19坪 | - | - | - | - |
| 8階 | 75.19坪 | - | - | - | - |
| 9階 | 75.19坪 | 即 | 23,000円/坪 | 賃料に含む | 1,729,370円/月 |
| 10階 | 70.97坪 | - | - | - | - |
| 10階 | 75.19坪 | 2025年12月20日 | 17,000円/坪 | 賃料に含む | 1,278,230円/月 |
| 11階 | 68.18坪 | - | - | - | - |
| 11階 | 64.7坪 | 即 | 23,000円/坪 | 賃料に含む | 1,488,100円/月 |

