- 東京の賃貸オフィス・貸事務所TOP
- 千代田区
- 麹町・半蔵門・永田町エリア
- 飯田ビル(イイダビル)
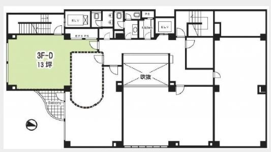
飯田ビル 3階 D 区画 13坪 賃貸オフィス詳細
- 物件ID
- 123256
- 飯田ビル(イイダビル) 3階 13坪
-
”飯田ビル(イイダビル)”は、 四ツ谷駅から徒歩4分、麹町駅から徒歩6分、市ヶ谷駅から徒歩7分、半蔵門駅から徒歩10分 の賃貸オフィスです。
1990年1月に竣工。構造は鉄筋コンクリート(RC造)。耐震構造は新耐震。
利用可能路線は中央線(快速)、有楽町線、半蔵門線で、 用途は賃貸オフィスとなっています。最寄り駅は四ツ谷駅と麹町駅と市ヶ谷駅と半蔵門駅。 住所は千代田区六番町5-5です。
ぜひ一度、内覧にお越しくださいませ。
フロア概要
| 階数 | 3階 D 区画 | 面積 | 13坪(42.98m²) |
|---|---|---|---|
| 賃料/坪 | 20,000円/坪 | 共益費/坪 | 2,000円/坪 |
| 月額賃料 (共益費込) |
286,000円 | 入居日 | 即 |
| 敷金 (保証金) |
6ヶ月 | 礼金 | 無し |
| 償却費 | 1ヶ月 | 更新料 | 1ヶ月 |
| 契約 | 普通借家(2年) | ||
ビル概要
| 物件名 | 飯田ビル(イイダビル) | ||
|---|---|---|---|
| 所在地 | 千代田区六番町5-5 | ||
| 利用可能駅 | |||
| 利用可能 路線 |
|||
| 竣工 | 1990年1月 | リニューアル | - |
| 構造 | 鉄筋コンクリート(RC造) | 規模 | 1階/4階 |
| 耐震構造 | 新耐震 | ||
個別空調
新耐震
光ファイバー利用可
要確認
要確認
要確認
アクセス
このビルの募集中フロア一覧
| 所在階 | 面積 | 入居予定 | 賃料 | 共益費 | 賃料総額 |
|---|---|---|---|---|---|
| 1階 | 16坪 | - | - | - | - |
| 2階 | 48坪 | 即 | 20,000円/坪 | 2,000円/坪 | 960,000円/月 |
| 2階 | 25坪 | - | - | - | - |
| 3階 | 23坪 | - | - | - | - |
| 3階 | 21坪 | - | - | - | - |
| 3階 | 13坪 | 即 | 20,000円/坪 | 2,000円/坪 | 260,000円/月 |
| 3階 | 13坪 | 即 | 20,000円/坪 | 2,000円/坪 | 260,000円/月 |
| 3階 | 13坪 | 即 | 20,000円/坪 | 2,000円/坪 | 260,000円/月 |

