- 東京の賃貸オフィス・貸事務所TOP
- 千代田区
- 大手町・丸の内エリア
- 岸本ビル(キシモトビル)
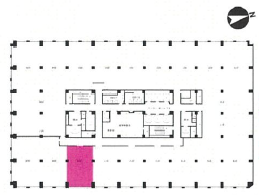
岸本ビル 8階 24.04坪 賃貸オフィス詳細
- 物件ID
- 121979
- 岸本ビル(キシモトビル) 8階 24.04坪
-
”岸本ビル(キシモトビル)”は、 二重橋前駅から徒歩2分、東京駅から徒歩6分、有楽町駅から徒歩7分、日比谷駅から徒歩8分、銀座一丁目駅から徒歩10分 の賃貸オフィスです。
1980年7月に竣工。構造は鉄骨鉄筋コンクリート(SRC造)。耐震構造は新耐震。
利用可能路線は有楽町線、千代田線、日比谷線、山手線、東海道本線で、 用途は賃貸オフィスとなっています。最寄り駅は二重橋前駅と東京駅と有楽町駅と日比谷駅と銀座一丁目駅。 住所は千代田区丸の内2-2-1です。
ぜひ一度、内覧にお越しくださいませ。
フロア概要
| 階数 | 8階 | 面積 | 24.04坪(79.47m²) |
|---|---|---|---|
| 賃料/坪 | 相談 | 共益費/坪 | 相談 |
| 月額賃料 (共益費込) |
相談 | 入居日 | 即 |
| 敷金 (保証金) |
相談 | 礼金 | 無し |
| 償却費 | 無し | 更新料 | 無し |
| 契約 | 定期借家 | ||
ビル概要
| 物件名 | 岸本ビル(キシモトビル) | ||
|---|---|---|---|
| 所在地 | 千代田区丸の内2-2-1 | ||
| 利用可能駅 | |||
| 利用可能 路線 |
|||
| 竣工 | 1980年7月 | リニューアル | - |
| 構造 | 鉄骨鉄筋コンクリート(SRC造) | 規模 | B8階/11階 |
| 耐震構造 | 新耐震 | ||
セントラル空調
新耐震
光ファイバー利用可
24時間利用可
OAフロア有り
駐車場有り
アクセス
このビルの募集中フロア一覧
| 所在階 | 面積 | 入居予定 | 賃料 | 共益費 | 賃料総額 |
|---|---|---|---|---|---|
| 1階 | 285.07坪 | - | - | - | - |
| 2階 | 226.89坪 | - | - | - | - |
| 2階 | 46.71坪 | - | - | - | - |
| 2階 | 110.43坪 | - | - | - | - |
| 2階 | 46.71坪 | - | - | - | - |
| 2階 | 23.61坪 | - | - | - | - |
| 3階 | 16.69坪 | - | - | - | - |
| 3階 | 14.07坪 | - | - | - | - |
| 3階 | 55.43坪 | - | - | - | - |
| 3階 | 206.23坪 | - | - | - | - |
| 4階 | 286.5坪 | - | - | - | - |
| 4階 | 197.82坪 | - | - | - | - |
| 4階 | 86.9坪 | - | - | - | - |
| 4階 | 112.29坪 | - | - | - | - |
| 4階 | 55.73坪 | - | - | - | - |
| 5階 | 38.52坪 | - | - | - | - |
| 5階 | 228.34坪 | - | - | - | - |
| 5階 | 88.11坪 | - | - | - | - |
| 5階 | 25.24坪 | - | - | - | - |
| 5階 | 53.66坪 | - | - | - | - |
| 5階 | 124.89坪 | - | - | - | - |
| 5階 | 140.23坪 | - | - | - | - |
| 7階 | 17.21坪 | - | - | - | - |
| 7階 | 447.2坪 | - | - | - | - |
| 7階 | 16.3坪 | - | - | - | - |
| 8階 | 24.04坪 | 即 | 相談 | 相談 | - |
| 8階 | 81.98坪 | - | - | - | - |
| 8階 | 48.07坪 | - | - | - | - |
| 8階 | 53.99坪 | - | - | - | - |
| 8階 | 139.35坪 | - | - | - | - |
| 8階 | 27.87坪 | - | - | - | - |
| 9階 | 86.44坪 | - | - | - | - |
| 10階 | 34.82坪 | - | - | - | - |
| 10階 | 50.68坪 | - | - | - | - |
| 10階 | 59.13坪 | - | - | - | - |
| 10階 | 55.73坪 | - | - | - | - |
| 10階 | 12.27坪 | - | - | - | - |

