- 東京の賃貸オフィス・貸事務所TOP
- 千代田区
- 麹町・半蔵門・永田町エリア
- テシコ六番町ビル(テシコロクバンチョウビル)
テシコ六番町ビル 3階 AB 18.18坪 賃貸オフィス詳細
- 物件ID
- 120621
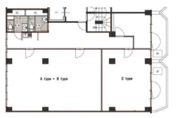
- テシコ六番町ビル(テシコロクバンチョウビル) 3階 18.18坪
-
”テシコ六番町ビル(テシコロクバンチョウビル)”は、 市ヶ谷駅から徒歩5分、麹町駅から徒歩6分、四ツ谷駅から徒歩7分、半蔵門駅から徒歩7分 の賃貸オフィスです。
1979年8月に竣工。構造は鉄骨鉄筋コンクリート(SRC造)。耐震構造は旧耐震。
利用可能路線は中央線(快速)、有楽町線、半蔵門線で、 用途は賃貸オフィスとなっています。最寄り駅は市ヶ谷駅と麹町駅と四ツ谷駅と半蔵門駅。 住所は千代田区六番町3-11です。
ぜひ一度、内覧にお越しくださいませ。
フロア概要
| 階数 | 3階 AB | 面積 | 18.18坪(60.1m²) |
|---|---|---|---|
| 賃料/坪 | 14,000円/坪 | 共益費/坪 | 賃料に含む |
| 月額賃料 (共益費込) |
254,520円 | 入居日 | 即 |
| 敷金 (保証金) |
6ヶ月 | 礼金 | 無し |
| 償却費 | 1ヶ月 | 更新料 | 1ヶ月 |
| 契約 | 普通借家(2年) | ||
ビル概要
| 物件名 | テシコ六番町ビル(テシコロクバンチョウビル) | ||
|---|---|---|---|
| 所在地 | 千代田区六番町3-11 | ||
| 利用可能駅 | |||
| 利用可能 路線 |
|||
| 竣工 | 1979年8月 | リニューアル | - |
| 構造 | 鉄骨鉄筋コンクリート(SRC造) | 規模 | 1階/6階 |
| 耐震構造 | 旧耐震 | ||
個別空調
旧耐震
光ファイバー利用可
24時間利用可
要確認
要確認
アクセス
このビルの募集中フロア一覧
| 所在階 | 面積 | 入居予定 | 賃料 | 共益費 | 賃料総額 |
|---|---|---|---|---|---|
| 1階 | 17.92坪 | - | - | - | - |
| 2階 | 38坪 | - | - | - | - |
| 3階 | 18.18坪 | 即 | 14,000円/坪 | 賃料に含む | 254,520円/月 |
| 4階 | 22.26坪 | - | - | - | - |
| 4階 | 15.93坪 | - | - | - | - |
| 4階 | 19.43坪 | - | - | - | - |

