- 東京の賃貸オフィス・貸事務所TOP
- 港区
- 浜松町・田町・三田・高輪・白金エリア
- 三田国際ビルヂング(ミタコクサイビルヂング)
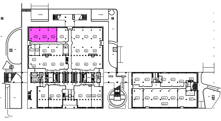
三田国際ビルヂング 1階 134.72坪 賃貸オフィス詳細
- 物件ID
- 119880
- 三田国際ビルヂング(ミタコクサイビルヂング) 1階 134.72坪
-
”三田国際ビルヂング(ミタコクサイビルヂング)”は、 赤羽橋駅から徒歩4分、芝公園駅から徒歩7分、三田駅から徒歩9分 の賃貸オフィスです。
1975年6月 新耐震基準適合に竣工。構造は鉄骨鉄筋コンクリート(SRC造)。耐震構造は旧耐震。
利用可能路線は都営大江戸線、都営浅草線、都営三田線で、 用途は賃貸オフィスとなっています。最寄り駅は赤羽橋駅と芝公園駅と三田駅。 住所は港区三田1-4-28です。
ぜひ一度、内覧にお越しくださいませ。
フロア概要
| 階数 | 1階 | 面積 | 134.72坪(445.36m²) |
|---|---|---|---|
| 賃料/坪 | 相談 | 共益費/坪 | 相談 |
| 月額賃料 (共益費込) |
相談 | 入居日 | 2026年8月1日 |
| 敷金 (保証金) |
相談 | 礼金 | 無し |
| 償却費 | 無し | 更新料 | 無し |
| 契約 | 定期借家(2年) | ||
ビル概要
| 物件名 | 三田国際ビルヂング(ミタコクサイビルヂング) | ||
|---|---|---|---|
| 所在地 | 港区三田1-4-28 | ||
| 利用可能駅 | |||
| 利用可能 路線 |
|||
| 竣工 | 1975年6月 新耐震基準適合 | リニューアル | 2006年 |
| 構造 | 鉄骨鉄筋コンクリート(SRC造) | 規模 | B3階/26階 |
| 耐震構造 | 旧耐震 新耐震基準適合 |
||
セントラル空調
旧耐震
光ファイバー利用可
24時間利用可
OAフロア有り
駐車場有り
アクセス
このビルの募集中フロア一覧
| 所在階 | 面積 | 入居予定 | 賃料 | 共益費 | 賃料総額 |
|---|---|---|---|---|---|
| B3階 | 83.31坪 | - | - | - | - |
| B2階 | 41.54坪 | - | - | - | - |
| B1階 | 40.02坪 | - | - | - | - |
| B1階 | 31.99坪 | 2026年2月1日 | 相談 | 相談 | - |
| B1階 | 41.27坪 | - | - | - | - |
| 1階 | 53.55坪 | - | - | - | - |
| 1階 | 88.04坪 | - | - | - | - |
| 1階 | 71.16坪 | - | - | - | - |
| 1階 | 134.72坪 | 2026年8月1日 | 相談 | 相談 | - |
| 1階 | 13.33坪 | - | - | - | - |
| 1階 | 110.45坪 | 即 | 相談 | 相談 | - |
| 1階 | 18.62坪 | - | - | - | - |
| 1階 | 201.76坪 | - | - | - | - |
| 1階 | 134.72坪 | - | - | - | - |
| 1階 | 120.2坪 | - | - | - | - |
| 2階 | 73.66坪 | - | - | - | - |
| 2階 | 71.82坪 | - | - | - | - |
| 2階 | 41.32坪 | - | - | - | - |
| 2階 | 36.19坪 | - | - | - | - |
| 3階 | 126.39坪 | - | - | - | - |
| 3階 | 103.04坪 | - | - | - | - |
| 3階 | 185.27坪 | - | - | - | - |
| 3階 | 73.6坪 | - | - | - | - |
| 3階 | 38.07坪 | - | - | - | - |
| 3階 | 29.44坪 | - | - | - | - |
| 3階 | 58.88坪 | 即 | 相談 | 相談 | - |
| 3階 | 44.16坪 | - | - | - | - |
| 3階 | 151.53坪 | - | - | - | - |
| 3階 | 69.29坪 | - | - | - | - |
| 3階 | 29.44坪 | - | - | - | - |
| 4階 | 326.38坪 | - | - | - | - |
| 4階 | 326.38坪 | 即 | 相談 | 相談 | - |
| 5階 | 58.88坪 | - | - | - | - |
| 5階 | 10.42坪 | - | - | - | - |
| 5階 | 29.44坪 | - | - | - | - |
| 5階 | 326.38坪 | - | - | - | - |
| 6階 | 102.55坪 | - | - | - | - |
| 9階 | 652.76坪 | - | - | - | - |
| 9階 | 326.38坪 | 即 | 相談 | 相談 | - |
| 10階 | 96.95坪 | - | - | - | - |
| 10階 | 258.87坪 | 即 | 相談 | 相談 | - |
| 10階 | 67.51坪 | - | - | - | - |
| 10階 | 88.32坪 | 即 | 相談 | 相談 | - |
| 10階 | 29.44坪 | - | - | - | - |
| 10階 | 44.16坪 | - | - | - | - |
| 11階 | 326.38坪 | - | - | - | - |
| 11階 | 29.44坪 | - | - | - | - |
| 12階 | 29坪 | - | - | - | - |
| 12階 | 58.88坪 | - | - | - | - |
| 12階 | 10.42坪 | - | - | - | - |
| 12階 | 258.87坪 | - | - | - | - |
| 12階 | 229.43坪 | 2026年1月1日 | 相談 | 相談 | - |
| 12階 | 38.07坪 | - | - | - | - |
| 13階 | 229.43坪 | - | - | - | - |
| 13階 | 96.95坪 | - | - | - | - |
| 13階 | 199.99坪 | - | - | - | - |
| 13階 | 44.16坪 | - | - | - | - |
| 13階 | 103.04坪 | - | - | - | - |
| 13階 | 58.88坪 | - | - | - | - |
| 13階 | 67.51坪 | - | - | - | - |
| 14階 | 663.17坪 | - | - | - | - |
| 14階 | 229.43坪 | - | - | - | - |
| 14階 | 96.95坪 | - | - | - | - |
| 14階 | 326.38坪 | 相談 | 相談 | 相談 | - |
| 15階 | 326.38坪 | - | - | - | - |
| 15階 | 229.43坪 | - | - | - | - |
| 15階 | 10.42坪 | - | - | - | - |
| 15階 | 20.67坪 | - | - | - | - |
| 15階 | 22.88坪 | - | - | - | - |
| 15階 | 96.95坪 | - | - | - | - |
| 16階 | 52.79坪 | - | - | - | - |
| 16階 | 44.16坪 | - | - | - | - |
| 16階 | 229.43坪 | - | - | - | - |
| 16階 | 132.48坪 | - | - | - | - |
| 16階 | 52.79坪 | - | - | - | - |
| 16階 | 44.16坪 | - | - | - | - |
| 16階 | 29坪 | - | - | - | - |
| 16階 | 96.95坪 | - | - | - | - |
| 16階 | 10.42坪 | - | - | - | - |
| 16階 | 67.51坪 | - | - | - | - |
| 17階 | 229.43坪 | 相談 | 相談 | 相談 | - |
| 17階 | 132.48坪 | - | - | - | - |
| 17階 | 10.42坪 | - | - | - | - |
| 17階 | 22.88坪 | - | - | - | - |
| 17階 | 96.95坪 | 相談 | 相談 | 相談 | - |
| 18階 | 67.51坪 | - | - | - | - |
| 18階 | 29.43坪 | - | - | - | - |
| 18階 | 458.86坪 | - | - | - | - |
| 18階 | 22.88坪 | - | - | - | - |
| 18階 | 44.16坪 | - | - | - | - |
| 18階 | 96.95坪 | - | - | - | - |
| 18階 | 29.44坪 | - | - | - | - |
| 19階 | 326.38坪 | - | - | - | - |
| 19階 | 326.38坪 | 即 | 相談 | 相談 | - |
| 19階 | 675.64坪 | - | - | - | - |
| 20階 | 681.82坪 | - | - | - | - |
| 22階 | 44.16坪 | - | - | - | - |
| 22階 | 117.76坪 | - | - | - | - |
| 22階 | 111.67坪 | - | - | - | - |
| 22階 | 326.38坪 | - | - | - | - |
| 23階 | 155.83坪 | - | - | - | - |
| 23階 | 88.32坪 | - | - | - | - |
| 23階 | 44.16坪 | - | - | - | - |
| 23階 | 22.88坪 | - | - | - | - |
| 23階 | 22.88坪 | - | - | - | - |
| 23階 | 96.95坪 | - | - | - | - |
| 23階 | 67.51坪 | - | - | - | - |
| 24階 | 22.88坪 | - | - | - | - |
| 24階 | 73.6坪 | - | - | - | - |
| 24階 | 44.16坪 | - | - | - | - |
| 24階 | 44.16坪 | - | - | - | - |
| 24階 | 67.51坪 | - | - | - | - |
| 24階 | 11.44坪 | - | - | - | - |
| 24階 | 29.44坪 | - | - | - | - |
| 24階 | 29.44坪 | - | - | - | - |
| 24階 | 326.38坪 | - | - | - | - |
| 24階 | 29.44坪 | - | - | - | - |
| 24階 | 229.43坪 | - | - | - | - |
| 25階 | 698.53坪 | - | - | - | - |
| 26階 | 22.88坪 | - | - | - | - |
| 26階 | 96.95坪 | - | - | - | - |
| 26階 | 229.43坪 | - | - | - | - |
| 26階 | 229.43坪 | - | - | - | - |
| 26階 | 22.88坪 | - | - | - | - |

