- 東京の賃貸オフィス・貸事務所TOP
- 中央区
- 銀座エリア
- 東成ビル(トウセイビル)
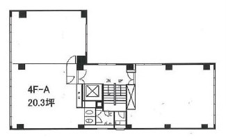
東成ビル 4階 A 20.3坪 賃貸オフィス詳細
- 物件ID
- 119434
- 東成ビル(トウセイビル) 4階 20.3坪
-
”東成ビル(トウセイビル)”は、 新橋駅から徒歩5分、汐留駅から徒歩6分、築地市場駅から徒歩7分、東銀座駅から徒歩7分、銀座駅から徒歩7分、内幸町駅から徒歩8分、日比谷駅から徒歩10分 の賃貸オフィスです。
1961年8月に竣工。構造は鉄骨鉄筋コンクリート(SRC造)。耐震構造は旧耐震。
利用可能路線は都営三田線、都営大江戸線、日比谷線、銀座線、東海道本線で、 用途は賃貸オフィスとなっています。最寄り駅は新橋駅と汐留駅と築地市場駅と東銀座駅と銀座駅と内幸町駅と日比谷駅。 住所は中央区銀座8-10-7です。
ぜひ一度、内覧にお越しくださいませ。
フロア概要
| 階数 | 4階 A | 面積 | 20.3坪(67.11m²) |
|---|---|---|---|
| 賃料/坪 | 19,500円/坪 | 共益費/坪 | 賃料に含む |
| 月額賃料 (共益費込) |
395,850円 | 入居日 | 即 |
| 敷金 (保証金) |
6ヶ月 | 礼金 | 無し |
| 償却費 | 1ヶ月 | 更新料 | 無し |
| 契約 | 定期借家(2年) | ||
ビル概要
| 物件名 | 東成ビル(トウセイビル) | ||
|---|---|---|---|
| 所在地 | 中央区銀座8-10-7 | ||
| 利用可能駅 | |||
| 利用可能 路線 |
|||
| 竣工 | 1961年8月 | リニューアル | - |
| 構造 | 鉄骨鉄筋コンクリート(SRC造) | 規模 | 1階/9階 |
| 耐震構造 | 旧耐震 | ||
個別空調
旧耐震
光ファイバー利用可
24時間利用可
OAフロア無し
駐車場無し
アクセス
このビルの募集中フロア一覧
| 所在階 | 面積 | 入居予定 | 賃料 | 共益費 | 賃料総額 |
|---|---|---|---|---|---|
| 2階 | 14.2坪 | - | - | - | - |
| 2階 | 11坪 | - | - | - | - |
| 2階 | 38.3坪 | - | - | - | - |
| 3階 | 20.2坪 | - | - | - | - |
| 4階 | 20.3坪 | 即 | 19,500円/坪 | 賃料に含む | 395,850円/月 |
| 4階 | 19.1坪 | - | - | - | - |
| 4階 | 13.6坪 | - | - | - | - |
| 5階 | 38.3坪 | - | - | - | - |
| 6階 | 25.1坪 | - | - | - | - |
| 6階 | 18.6坪 | - | - | - | - |
| 6階 | 19.7坪 | - | - | - | - |
| 8階 | 10.6坪 | - | - | - | - |
| 8階 | 16.7坪 | - | - | - | - |
| 9階 | 12坪 | - | - | - | - |
| 9階 | 13.14坪 | - | - | - | - |

