- 東京の賃貸オフィス・貸事務所TOP
- 千代田区
- 麹町・半蔵門・永田町エリア
- 桔梗ライオンズマンション平河町(キキョウライオンズマンションヒラカワチョウ)
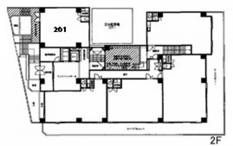
桔梗ライオンズマンション平河町 2階 201 17.48坪 賃貸オフィス詳細
- 物件ID
- 1179
- 桔梗ライオンズマンション平河町(キキョウライオンズマンションヒラカワチョウ) 2階 17.48坪
-
”桔梗ライオンズマンション平河町(キキョウライオンズマンションヒラカワチョウ)”は、 半蔵門駅から徒歩5分、麹町駅から徒歩5分、永田町駅から徒歩6分、赤坂見附駅から徒歩10分 の賃貸オフィスです。
1981年8月に竣工。構造は鉄骨一部鉄筋コンクリート(S・RC造)。耐震構造は旧耐震。
利用可能路線は半蔵門線、有楽町線、銀座線で、 用途は賃貸オフィスとなっています。最寄り駅は半蔵門駅と麹町駅と永田町駅と赤坂見附駅。 住所は千代田区平河町1-8-8です。
ぜひ一度、内覧にお越しくださいませ。
フロア概要
| 階数 | 2階 201 | 面積 | 17.48坪(57.79m²) |
|---|---|---|---|
| 賃料/坪 | 9,726円/坪 | 共益費/坪 | 賃料に含む |
| 月額賃料 (共益費込) |
170,000円 | 入居日 | 即 |
| 敷金 (保証金) |
6ヶ月 | 礼金 | 無し |
| 償却費 | 1ヶ月 | 更新料 | 無し |
| 契約 | 定期借家(2年) | ||
ビル概要
| 物件名 | 桔梗ライオンズマンション平河町(キキョウライオンズマンションヒラカワチョウ) | ||
|---|---|---|---|
| 所在地 | 千代田区平河町1-8-8 | ||
| 利用可能駅 | |||
| 利用可能 路線 |
|||
| 竣工 | 1981年8月 | リニューアル | - |
| 構造 | 鉄骨一部鉄筋コンクリート(S・RC造) | 規模 | B1階/10階 |
| 耐震構造 | 旧耐震 | ||
個別空調
旧耐震
光ファイバー利用可
要確認
要確認
駐車場無し
アクセス
このビルの募集中フロア一覧
| 所在階 | 面積 | 入居予定 | 賃料 | 共益費 | 賃料総額 |
|---|---|---|---|---|---|
| 2階 | 26.66坪 | - | - | - | - |
| 2階 | 17.48坪 | 即 | 9,726円/坪 | 賃料に含む | 170,000円/月 |
| 2階 | 20.72坪 | - | - | - | - |

