- 東京の賃貸オフィス・貸事務所TOP
- 中央区
- 茅場町・八丁堀・新川・兜町周辺エリア
- キューブワン八丁堀(キューブワンハッチョウボリ)
キューブワン八丁堀 2階 64.64坪 賃貸オフィス詳細
- 物件ID
- 117065
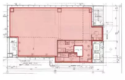
- キューブワン八丁堀(キューブワンハッチョウボリ) 2階 64.64坪
-
”キューブワン八丁堀(キューブワンハッチョウボリ)”は、 八丁堀駅から徒歩3分、京橋駅から徒歩7分、新富町駅から徒歩8分、茅場町駅から徒歩8分、日本橋駅から徒歩10分 の賃貸オフィスです。
2022年9月に竣工。耐震構造は新耐震。
利用可能路線は都営大江戸線、半蔵門線、有楽町線、日比谷線、丸ノ内線、銀座線、京葉線、総武本線、東海道本線で、 用途は賃貸オフィスとなっています。最寄り駅は八丁堀駅と京橋駅と新富町駅と茅場町駅と日本橋駅。 住所は中央区八丁堀1-11-12です。
ぜひ一度、内覧にお越しくださいませ。
フロア概要
| 階数 | 2階 | 面積 | 64.64坪(213.69m²) |
|---|---|---|---|
| 賃料/坪 | 相談 | 共益費/坪 | 賃料に含む |
| 月額賃料 (共益費込) |
相談 | 入居日 | 2026年3月17日 |
| 敷金 (保証金) |
相談 | 礼金 | 無し |
| 償却費 | 無し | 更新料 | 無し |
| 契約 | 定期借家(2年) | ||
ビル概要
| 物件名 | キューブワン八丁堀(キューブワンハッチョウボリ) | ||
|---|---|---|---|
| 所在地 | 中央区八丁堀1-11-12 | ||
| 利用可能駅 | |||
| 利用可能 路線 |
|||
| 竣工 | 2022年9月 | リニューアル | - |
| 構造 | 不明 | 規模 | 1階/9階 |
| 耐震構造 | 新耐震 | ||
個別空調
新耐震
要確認
要確認
要確認
要確認
アクセス
このビルの募集中フロア一覧
| 所在階 | 面積 | 入居予定 | 賃料 | 共益費 | 賃料総額 |
|---|---|---|---|---|---|
| 2階 | 64.64坪 | 2026年3月17日 | 相談 | 賃料に含む | - |
| 3階 | 64.63坪 | - | - | - | - |
| 4階 | 64.64坪 | - | - | - | - |
| 5階 | 64.63坪 | - | - | - | - |
| 6階 | 64.64坪 | - | - | - | - |
| 7階 | 64.63坪 | - | - | - | - |
| 8階 | 64.63坪 | - | - | - | - |
| 9階 | 64.63坪 | - | - | - | - |
