- 東京の賃貸オフィス・貸事務所TOP
- 新宿区
- 市ヶ谷・神楽坂・牛込周辺エリア
- 市ヶ谷キャナルコート(イチガヤキャナルコート)
市ヶ谷キャナルコート 5階 169.18坪 賃貸オフィス詳細
- 物件ID
- 116506
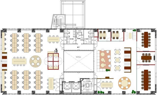
- 市ヶ谷キャナルコート(イチガヤキャナルコート) 5階 169.18坪
-
”市ヶ谷キャナルコート(イチガヤキャナルコート)”は、 市ヶ谷駅から徒歩6分、四ツ谷駅から徒歩7分、曙橋駅から徒歩10分 の賃貸オフィスです。
1992年3月に竣工。構造は鉄骨鉄筋コンクリート(SRC造)。耐震構造は新耐震。
利用可能路線は中央線(快速)、丸ノ内線、有楽町線、半蔵門線、都営大江戸線、都営新宿線で、 用途は賃貸オフィスとなっています。最寄り駅は市ヶ谷駅と四ツ谷駅と曙橋駅。 住所は新宿区市谷本村町2-21です。
ぜひ一度、内覧にお越しくださいませ。
フロア概要
| 階数 | 5階 | 面積 | 169.18坪(559.28m²) |
|---|---|---|---|
| 賃料/坪 | 28,000円/坪 | 共益費/坪 | 賃料に含む |
| 月額賃料 (共益費込) |
4,737,040円 | 入居日 | 即 |
| 敷金 (保証金) |
3ヶ月 | 礼金 | 無し |
| 償却費 | 無し | 更新料 | 無し |
| 契約 | 普通借家(2年) | ||
ビル概要
| 物件名 | 市ヶ谷キャナルコート(イチガヤキャナルコート) | ||
|---|---|---|---|
| 所在地 | 新宿区市谷本村町2-21 | ||
| 利用可能駅 | |||
| 利用可能 路線 |
|||
| 竣工 | 1992年3月 | リニューアル | - |
| 構造 | 鉄骨鉄筋コンクリート(SRC造) | 規模 | 1階/9階 |
| 耐震構造 | 新耐震 | ||
個別空調
新耐震
光ファイバー利用可
24時間利用可
要確認
要確認
アクセス
このビルの募集中フロア一覧
| 所在階 | 面積 | 入居予定 | 賃料 | 共益費 | 賃料総額 |
|---|---|---|---|---|---|
| 1階 | 80.66坪 | - | - | - | - |
| 1階 | 55.88坪 | 即 | 28,000円/坪 | 賃料に含む | 1,564,640円/月 |
| 2階 | 169.52坪 | - | - | - | - |
| 3階 | 169.52坪 | - | - | - | - |
| 4階 | 169.52坪 | - | - | - | - |
| 5階 | 169.18坪 | 即 | 28,000円/坪 | 賃料に含む | 4,737,040円/月 |
| 6階 | 92.74坪 | - | - | - | - |
| 7階 | 94.82坪 | 即 | 21,000円/坪 | 賃料に含む | 1,991,220円/月 |
| 8階 | 94.82坪 | 即 | 22,000円/坪 | 賃料に含む | 2,086,040円/月 |

