- 東京の賃貸オフィス・貸事務所TOP
- 千代田区
- 内神田・小川町・淡路町エリア
- NBF小川町ビルディング(エヌビーエフオガワマチビルディング)
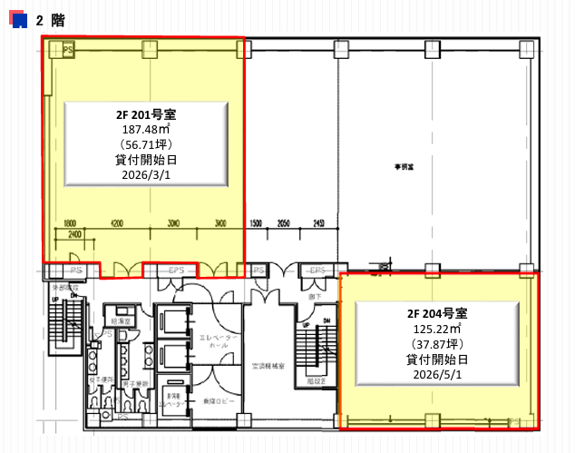
NBF小川町ビルディング 2階 201号室 56.71坪 賃貸オフィス詳細
- 物件ID
- 115820
- NBF小川町ビルディング(エヌビーエフオガワマチビルディング) 2階 56.71坪
-
”NBF小川町ビルディング(エヌビーエフオガワマチビルディング)”は、 淡路町駅から徒歩3分、神田駅から徒歩7分、御茶ノ水駅から徒歩8分 の賃貸オフィスです。
1986年11月に竣工。構造は鉄骨鉄筋コンクリート(SRC造)。耐震構造は新耐震。
利用可能路線は山手線、中央線(快速)、丸ノ内線で、 用途は賃貸オフィスとなっています。最寄り駅は淡路町駅と神田駅と御茶ノ水駅。 住所は千代田区神田小川町1-3-1です。
ぜひ一度、内覧にお越しくださいませ。
フロア概要
| 階数 | 2階 201号室 | 面積 | 56.71坪(187.48m²) |
|---|---|---|---|
| 賃料/坪 | 相談 | 共益費/坪 | 賃料に含む |
| 月額賃料 (共益費込) |
相談 | 入居日 | 2026年3月1日 |
| 敷金 (保証金) |
12ヶ月 | 礼金 | 無し |
| 償却費 | 無し | 更新料 | 無し |
| 契約 | 定期借家(2年) | ||
ビル概要
| 物件名 | NBF小川町ビルディング(エヌビーエフオガワマチビルディング) | ||
|---|---|---|---|
| 所在地 | 千代田区神田小川町1-3-1 | ||
| 利用可能駅 | |||
| 利用可能 路線 |
|||
| 竣工 | 1986年11月 | リニューアル | - |
| 構造 | 鉄骨鉄筋コンクリート(SRC造) | 規模 | B1階/10階 |
| 耐震構造 | 新耐震 | ||
個別空調
新耐震
光ファイバー利用可
24時間利用可
OAフロア有り
駐車場有り
アクセス
このビルの募集中フロア一覧
| 所在階 | 面積 | 入居予定 | 賃料 | 共益費 | 賃料総額 |
|---|---|---|---|---|---|
| 1階 | 36.75坪 | - | - | - | - |
| 1階 | 58.7坪 | - | - | - | - |
| 2階 | 56.71坪 | 2026年3月1日 | 相談 | 賃料に含む | - |
| 2階 | 37.87坪 | 2026年5月1日 | 相談 | 賃料に含む | - |
| 4階 | 85.92坪 | - | - | - | - |
| 4階 | 92.49坪 | - | - | - | - |
| 5階 | 121.71坪 | - | - | - | - |
| 5階 | 56.71坪 | - | - | - | - |
| 7階 | 140.54坪 | - | - | - | - |
| 7階 | 37.87坪 | - | - | - | - |
| 8階 | 178.42坪 | - | - | - | - |
| 9階 | 178.42坪 | - | - | - | - |

