- 東京の賃貸オフィス・貸事務所TOP
- 千代田区
- 神田・秋葉原・岩本町エリア
- サトケイビル(サトケイビル)
サトケイビル 1階 30.65坪 賃貸オフィス詳細
- 物件ID
- 115676
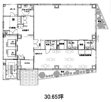
- サトケイビル(サトケイビル) 1階 30.65坪
-
”サトケイビル(サトケイビル)”は、 岩本町駅から徒歩3分、秋葉原駅から徒歩6分、馬喰町駅から徒歩8分、浅草橋駅から徒歩8分、小伝馬町駅から徒歩9分 の賃貸オフィスです。
2022年2月に竣工。構造はCFT(コンクリート充填鋼管構造)。耐震構造は新耐震。
利用可能路線は山手線、中央・総武線、総武本線、銀座線、丸ノ内線、日比谷線、千代田線、都営大江戸線、都営新宿線で、 用途は賃貸オフィスとなっています。最寄り駅は岩本町駅と秋葉原駅と馬喰町駅と浅草橋駅と小伝馬町駅。 住所は千代田区岩本町3-11-4です。
ぜひ一度、内覧にお越しくださいませ。
フロア概要
| 階数 | 1階 | 面積 | 30.65坪(101.32m²) |
|---|---|---|---|
| 賃料/坪 | 23,500円/坪 | 共益費/坪 | 3,500円/坪 |
| 月額賃料 (共益費込) |
827,550円 | 入居日 | 2026年4月上旬 |
| 敷金 (保証金) |
8ヶ月 | 礼金 | 無し |
| 償却費 | 無し | 更新料 | 無し |
| 契約 | 普通借家(2年) | ||
ビル概要
| 物件名 | サトケイビル(サトケイビル) | ||
|---|---|---|---|
| 所在地 | 千代田区岩本町3-11-4 | ||
| 利用可能駅 | |||
| 利用可能 路線 |
|||
| 竣工 | 2022年2月 | リニューアル | - |
| 構造 | CFT(コンクリート充填鋼管構造) | 規模 | 1階/9階 |
| 耐震構造 | 新耐震 | ||
個別空調
新耐震
光ファイバー利用可
24時間利用可
OAフロア有り
要確認
アクセス
このビルの募集中フロア一覧
| 所在階 | 面積 | 入居予定 | 賃料 | 共益費 | 賃料総額 |
|---|---|---|---|---|---|
| 1階 | 131.06坪 | - | - | - | - |
| 1階 | 30.65坪 | 2026年4月上旬 | 23,500円/坪 | 3,500円/坪 | 720,275円/月 |
| 2階 | 58.1坪 | - | - | - | - |
| 3階 | 58.1坪 | - | - | - | - |
| 5階 | 58.1坪 | - | - | - | - |
| 6階 | 58.1坪 | - | - | - | - |
| 7階 | 58.1坪 | - | - | - | - |
| 8階 | 58.1坪 | - | - | - | - |
| 9階 | 58.1坪 | - | - | - | - |

