- 東京の賃貸オフィス・貸事務所TOP
- 新宿区
- 四ツ谷・四ツ谷三丁目・信濃町エリア
- 四谷三栄町スクエア(ヨツヤサンエイチョウスクエア)
四谷三栄町スクエア 4階 62.62坪 賃貸オフィス詳細
- 物件ID
- 112000
- 四谷三栄町スクエア(ヨツヤサンエイチョウスクエア) 4階 62.62坪
-
”四谷三栄町スクエア(ヨツヤサンエイチョウスクエア)”は、 四谷三丁目駅から徒歩5分、曙橋駅から徒歩6分、四ツ谷駅から徒歩9分 の賃貸オフィスです。
1988年2月に竣工。構造は鉄筋コンクリート(RC造)。耐震構造は新耐震。
利用可能路線は都営大江戸線、丸ノ内線、中央線(快速)、都営新宿線で、 用途は賃貸オフィスとなっています。最寄り駅は四谷三丁目駅と曙橋駅と四ツ谷駅。 住所は新宿区四谷三栄町9-6です。
ぜひ一度、内覧にお越しくださいませ。
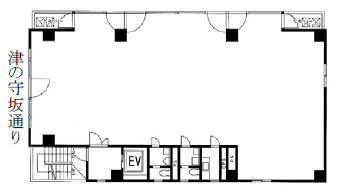
フロア概要
| 階数 | 4階 | 面積 | 62.62坪(207.01m²) |
|---|---|---|---|
| 賃料/坪 | 23,000円/坪 | 共益費/坪 | 賃料に含む |
| 月額賃料 (共益費込) |
1,440,260円 | 入居日 | 2026年2月1日 |
| 敷金 (保証金) |
6ヶ月 | 礼金 | 無し |
| 償却費 | 無し | 更新料 | 無し |
| 契約 | 普通借家(2年) | ||
ビル概要
| 物件名 | 四谷三栄町スクエア(ヨツヤサンエイチョウスクエア) | ||
|---|---|---|---|
| 所在地 | 新宿区四谷三栄町9-6 | ||
| 利用可能駅 | |||
| 利用可能 路線 |
|||
| 竣工 | 1988年2月 | リニューアル | - |
| 構造 | 鉄筋コンクリート(RC造) | 規模 | 1階/6階 |
| 耐震構造 | 新耐震 | ||
個別空調
新耐震
光ファイバー利用可
24時間利用可
OAフロア無し
駐車場有り
アクセス
このビルの募集中フロア一覧
| 所在階 | 面積 | 入居予定 | 賃料 | 共益費 | 賃料総額 |
|---|---|---|---|---|---|
| 2階 | 61.02坪 | - | - | - | - |
| 3階 | 62.62坪 | 2026年3月1日 | 23,000円/坪 | 賃料に含む | 1,440,260円/月 |
| 4階 | 62.62坪 | 2026年2月1日 | 23,000円/坪 | 賃料に含む | 1,440,260円/月 |
| 5階 | 57.88坪 | - | - | - | - |
| 6階 | 30.53坪 | - | - | - | - |

