- 東京の賃貸オフィス・貸事務所TOP
- 千代田区
- 麹町・半蔵門・永田町エリア
- ZeST一番町(ゼストイチバンチョウ)
ZeST一番町 4階 70.01坪 賃貸オフィス詳細
- 物件ID
- 111910
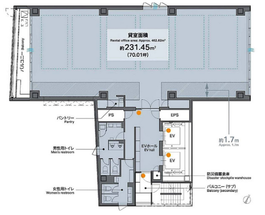
- ZeST一番町(ゼストイチバンチョウ) 4階 70.01坪
-
”ZeST一番町(ゼストイチバンチョウ)”は、 半蔵門駅から徒歩4分、麹町駅から徒歩5分、市ヶ谷駅から徒歩8分、四ツ谷駅から徒歩10分 の賃貸オフィスです。
2022年4月に竣工。構造は鉄骨造(S造)。耐震構造は新耐震。
利用可能路線は有楽町線、丸ノ内線、銀座線、中央線(快速)、JR中央本線(東京?塩尻)、半蔵門線で、 用途は賃貸オフィスとなっています。最寄り駅は半蔵門駅と麹町駅と市ヶ谷駅と四ツ谷駅。 住所は千代田区一番町10-6です。
ぜひ一度、内覧にお越しくださいませ。
フロア概要
| 階数 | 4階 | 面積 | 70.01坪(231.44m²) |
|---|---|---|---|
| 賃料/坪 | - | 共益費/坪 | - |
| 月額賃料 (共益費込) |
- | 入居日 | - |
| 敷金 (保証金) |
- | 礼金 | - |
| 償却費 | - | 更新料 | - |
| 契約 | - | ||
ビル概要
| 物件名 | ZeST一番町(ゼストイチバンチョウ) | ||
|---|---|---|---|
| 所在地 | 千代田区一番町10-6 | ||
| 利用可能駅 | |||
| 利用可能 路線 |
|||
| 竣工 | 2022年4月 | リニューアル | - |
| 構造 | 鉄骨造(S造) | 規模 | 1階/9階 |
| 耐震構造 | 新耐震 | ||
個別空調
新耐震
光ファイバー利用可
24時間利用可
OAフロア有り
要確認
アクセス
このビルの募集中フロア一覧
| 所在階 | 面積 | 入居予定 | 賃料 | 共益費 | 賃料総額 |
|---|---|---|---|---|---|
| 2階 | 70.01坪 | - | - | - | - |
| 3階 | 70.01坪 | - | - | - | - |
| 4階 | 70.01坪 | - | - | - | - |
| 5階 | 70.01坪 | - | - | - | - |
| 6階 | 70.01坪 | - | - | - | - |
| 7階 | 70.01坪 | - | - | - | - |
| 8階 | 70.01坪 | - | - | - | - |
| 9階 | 70.01坪 | 即 | 21,000円/坪 | 賃料に含む | 1,470,210円/月 |

