- 東京の賃貸オフィス・貸事務所TOP
- 千代田区
- 内神田・小川町・淡路町エリア
- 上田ビル(ウエダビル)
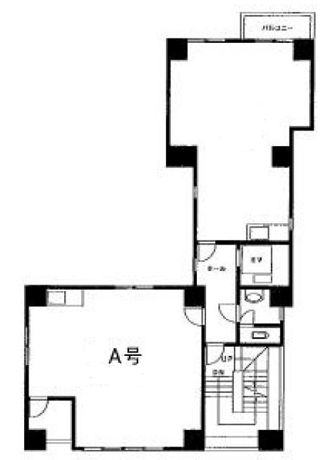
上田ビル 5階 A 12.1坪 賃貸オフィス詳細
- 物件ID
- 111214
- 上田ビル(ウエダビル) 5階 12.1坪
-
”上田ビル(ウエダビル)”は、 淡路町駅から徒歩4分、神田駅から徒歩6分、新日本橋駅から徒歩10分、大手町駅から徒歩10分、御茶ノ水駅から徒歩10分 の賃貸オフィスです。
1984年12月に竣工。構造は鉄骨鉄筋コンクリート(SRC造)。耐震構造は新耐震。
利用可能路線は都営新宿線、半蔵門線、千代田線、東西線、丸ノ内線、銀座線、総武本線、中央線(快速)、山手線、東海道本線で、 用途は賃貸オフィスとなっています。最寄り駅は淡路町駅と神田駅と新日本橋駅と大手町駅と御茶ノ水駅。 住所は千代田区神田司町2-19です。
ぜひ一度、内覧にお越しくださいませ。
フロア概要
| 階数 | 5階 A | 面積 | 12.1坪(40m²) |
|---|---|---|---|
| 賃料/坪 | 11,000円/坪 | 共益費/坪 | 2,000円/坪 |
| 月額賃料 (共益費込) |
157,300円 | 入居日 | 即 |
| 敷金 (保証金) |
798,000円 | 礼金 | 無し |
| 償却費 | 無し | 更新料 | 1ヶ月 |
| 契約 | 普通借家(2年) | ||
ビル概要
| 物件名 | 上田ビル(ウエダビル) | ||
|---|---|---|---|
| 所在地 | 千代田区神田司町2-19 | ||
| 利用可能駅 | |||
| 利用可能 路線 |
|||
| 竣工 | 1984年12月 | リニューアル | - |
| 構造 | 鉄骨鉄筋コンクリート(SRC造) | 規模 | 1階/7階 |
| 耐震構造 | 新耐震 | ||
空調有り
新耐震
光ファイバー利用可
要確認
OAフロア無し
要確認
アクセス
このビルの募集中フロア一覧
| 所在階 | 面積 | 入居予定 | 賃料 | 共益費 | 賃料総額 |
|---|---|---|---|---|---|
| 2階 | 10.73坪 | - | - | - | - |
| 4階 | 12.1坪 | - | - | - | - |
| 5階 | 10.73坪 | 即 | 11,000円/坪 | 2,000円/坪 | 118,030円/月 |
| 5階 | 12.1坪 | 即 | 11,000円/坪 | 2,000円/坪 | 133,100円/月 |

